Transport en commun PORTE DE ST-OUEN

Des locaux commerciaux rénovés à vendre à PARIS 18 (75018), métro PORTE DE ST-OUEN, 189 m² atypiques disposant d'une très belle hauteur-sous-plafond.

PORTE DE ST-OUEN

189 m² non-divisibles

1 590 000 €
8 413 €/m²


Immeuble, prestations et services

Cuisine ERP/PMR Rénovés Gardien Standing

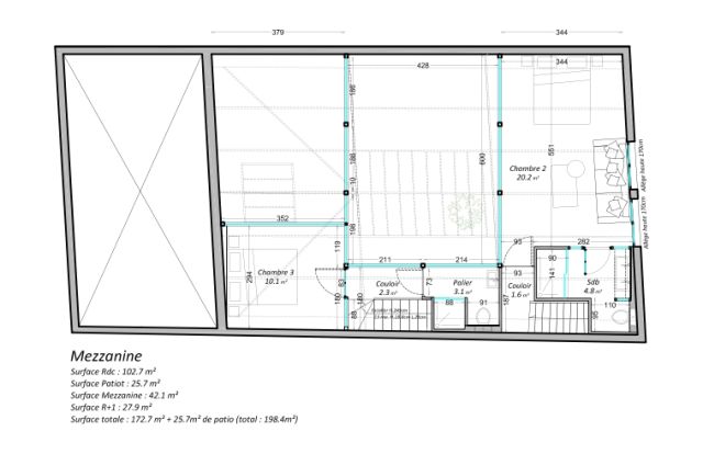
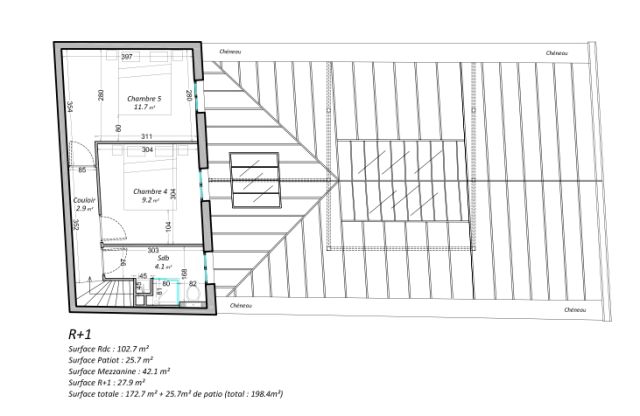
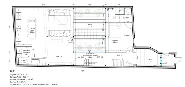
Une surface de 189 m² en RDC, mezzanine et 1er étage, autour d’un patio intérieur distribuant une lumière naturelle sur tous les espaces.

De très beaux volumes avec des prestations haut de gamme : bureaux avec châssis atelier, charpentes métalliques et pierres apparentes, parquet chêne massif, cuisine équipée, WC et douche.

Hauteur-sous-plafond jusqu’à 3.37 m

Cuisine. Patio intérieur de 26 m²

Etat des biens : rénovés.

Etat des locaux : Entièrement Rénové

Les biens s'inscrivent dans un immeuble industriel édifié dans les années 90 d'un bâtiment sur rue et cour.

A destination mixte, bureaux et résidentiel, l'immeuble est détenu en copropriété.

Ses façades modernes sont en bon état de ravalement, et ses parties communes de bon standing.

Ses prestations générales regroupent ascenseurs, interphone, digicode, gardien et accès sécurisés.

Les informations sur les risques auxquels ce bien est exposé sont disponibles sur le site Géorisques : www.georisques.gouv.fr.

Tableau de surfaces

Niveau Type Surface Prix* Charges**
Rez de chaussée BUREAUX 122 m² NC NC
Etage BUREAUX 52 m² NC NC
Etage BUREAUX 15 m² NC NC

*Prix exprimé en €/m²
**Charges exprimées en € HT/m²/an

Conditions financières et juridiques

8 413 € / m²

Plus faible valeur du marché

3 691 € / m²

Plus forte valeur du marché

11 500 € / m²
  • Prix net vendeur

    1 590 000 €

  • Charges annuelles

    3 694 €

  • Impôt foncier

    940 €

  • Taxe sur les bureaux

    En cours de validation

  • Consommation énergétique

    En cours

  • Gaz à effet de serre

    En cours

  • Surfaces et affectations en cours de validation
  • Cession de l'actif libre de location ou d'occupation.
  • Vente de gré à gré.
  • Cession soumise aux droits d'enregistrement.
  • Le prix de vente s'exprime NET VENDEUR. L'assiette utilisée pour le calcul les droits de mutation n'inclut pas les honoraires hors TVA à la charge de l'acquéreur.

PARTAGER

Laurent MEIMOUN

Laurent MEIMOUN

Nous appeler
Selectionner cette offre Imprimer cette offre Partager cette offre par email
Réf. 6355

Les offres similaires