Transport en commun Jules Joffrin

Des bureaux à vendre à PARIS 18 (75018), métro Jules Joffrin, 415 m² de bureaux rénovés dans un immeuble récent.

Jules Joffrin

416 m² non-divisibles

3 200 000 €
7 693 €/m²


Immeuble, prestations et services

Chauffage collectif Espace extérieur ERP/PMR Rénovés Gardien Standing

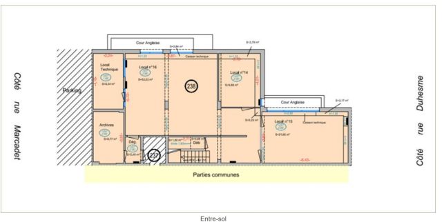
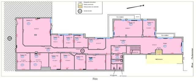
Locaux aménagés en duplex, 318,60 m² au rez-de-chaussée et 96,58 m² en rez-de-jardin

Deux accès indépendants + 1 issue de secours - accessibilité PMR/ERP 5

Chauffage collectif au gaz. Climatisation réversible

Faux-plafond. Parquet

Surface idéale pour des organismes de formations, et organisme recevant du public

Etat des biens : rénovés

Les biens s'inscrivent dans un immeuble récent, principalement constitué d'un bâtiment sur rue et cour.

A destination mixte, de bureaux et résidentiel, l'immeuble est détenu en copropriété.

Ses façades modernes sont en bon état de ravalement, et ses parties communes de bon standing.

Les prestations de chauffage sont produites par l'immeuble.

Ses prestations générales regroupent ascenseurs, interphone, digicode, gardien et accès sécurisés.

Les informations sur les risques auxquels ce bien est exposé sont disponibles sur le site Géorisques : www.georisques.gouv.frGéorisques : www.georisques.gouv.fr.

Tableau de surfaces

Niveau Type Surface Prix* Charges**
Rez de chauss BUREAUX 319 m² 7 200 € NC
Rez de jardin BUREAUX 97 m² 6 200 € NC

*Prix exprimé en €/m²
**Charges exprimées en € HT/m²/an

Conditions financières et juridiques

7 693 € / m²

Plus faible valeur du marché

3 691 € / m²

Plus forte valeur du marché

11 500 € / m²
  • Prix net vendeur

    3 200 000 €

  • Charges annuelles

    7 488 €

  • Impôt foncier

    14 €

  • Taxe sur les bureaux

    20,79 €

  • Consommation énergétique

    En cours

  • Gaz à effet de serre

    En cours

  • Surfaces et affectations en cours de validation
  • Cession de l'actif libre de location ou d'occupation.
  • Vente de gré à gré.
  • Cession soumise aux droits d'enregistrement.
  • Le prix de vente s'exprime NET VENDEUR. L'assiette utilisée pour le calcul les droits de mutation n'inclut pas les honoraires hors TVA à la charge de l'acquéreur.

PARTAGER

Service Documentaliste

Service Documentaliste

Nous appeler
Selectionner cette offre Imprimer cette offre Partager cette offre par email
Réf. 6212

Les offres similaires