Transport en commun Grands Boulevards

Des bureaux à vendre à PARIS 09 (75009), métro Grands Boulevards, 150 m² de bureaux dans un immeuble de standing.

Grands Boulevards

150 m² non-divisibles

2 000 000 €
13 334 €/m²


Immeuble, prestations et services

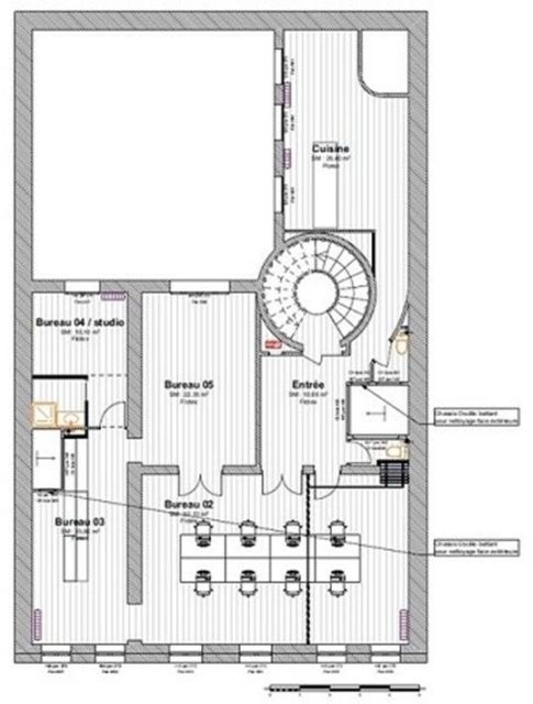
Chauffage collectif Cuisine ERP/PMR Standing

Au 1er étage, 149.82 m² (Carrez) de bureaux lumineux répartis en un accueil, 3 bureaux sur rue, 2 bureaux sur cour, 1 espace convivial avec cuisine, 2 sanitaires, 1 douche.

Possibilité de décloisonner. Le mobilier peut être conservé.

Belle hauteur sous-plafond. Doubles vitrages. Moulures.

Câblage informatique.

Chauffage collectif.

Etat des biens : état d'usage.

Les biens s'inscrivent dans un immeuble ancien, principalement constitué d'un bâtiment sur rue et cour.

A destination mixte, de bureaux et résidentiel, l'immeuble est détenu en copropriété.

Ses façades pierres de taille sont en bon état de ravalement, ses parties communes de bon standing.

Ses prestations générales regroupent ascenseur, interphone, chauffage collectif, accès sécurisés.

Les informations sur les risques auxquels ce bien est exposé sont disponibles sur le site Géorisques : www.georisques.gouv.fr.

Tableau de surfaces

Niveau Type Surface Prix* Charges**
Etage BUREAUX 150 m² NC NC

*Prix exprimé en €/m²
**Charges exprimées en € HT/m²/an

Conditions financières et juridiques

13 334 € / m²

Plus faible valeur du marché

1 191 € / m²

Plus forte valeur du marché

21 501 € / m²
  • Prix net vendeur

    2 000 000 €

  • Charges annuelles

    5 406 €

  • Impôt foncier

    11,51 €

  • Taxe sur les bureaux

    25,31 €

  • Consommation énergétique

    En cours

  • Gaz à effet de serre

    En cours

  • Surfaces et affectations en cours de validation
  • Cession de l'actif libre de location ou d'occupation.
  • Vente de gré à gré.
  • Cession soumise aux droits d'enregistrement.
  • Le prix de vente s'exprime NET VENDEUR. L'assiette utilisée pour le calcul les droits de mutation n'inclut pas les honoraires hors TVA à la charge de l'acquéreur.

PARTAGER

Laurent MEIMOUN

Laurent MEIMOUN

Nous appeler
Selectionner cette offre Imprimer cette offre Partager cette offre par email
Réf. 6461

Les offres similaires