Transport en commun CADET. LE PELETIER

Des bureaux à vendre à PARIS (75009), métro GRANDS BOULEVARDS. BONNE NOUVELLE, 598 m² de bureaux dans un bel immeuble industriel.

CADET. LE PELETIER

598 m² non-divisibles

8 190 000 €
13 696 €/m²


Immeuble, prestations et services

Espaces ouverts Salle de réunion Cuisine Rénovés Gardien

Des bureaux atypiques sur trois niveaux:

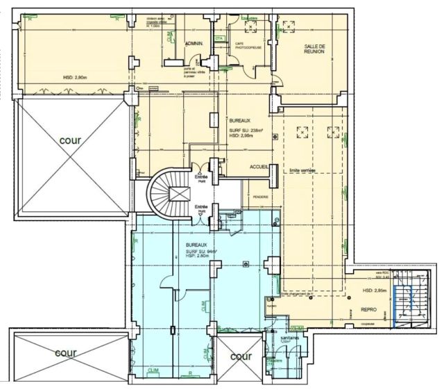
Au premier étage 332 m² d'un seul tenant ou en deux lots, disposant de belles hauteurs-sous-plafond et d'une belle luminosité :

- A droite, 94 m² comprenant 1 entrée, espaces ouverts, cuisine et sanitaires

- A gauche, 238 m² comprenant 1 entrée, espaces ouverts, 1 salle de réunion, 2 bureaux cloisonnés, cuisine et sanitaires

Au rez-de-chaussée : 3 espaces ouverts, 1 coin-cuisine et sanitaires

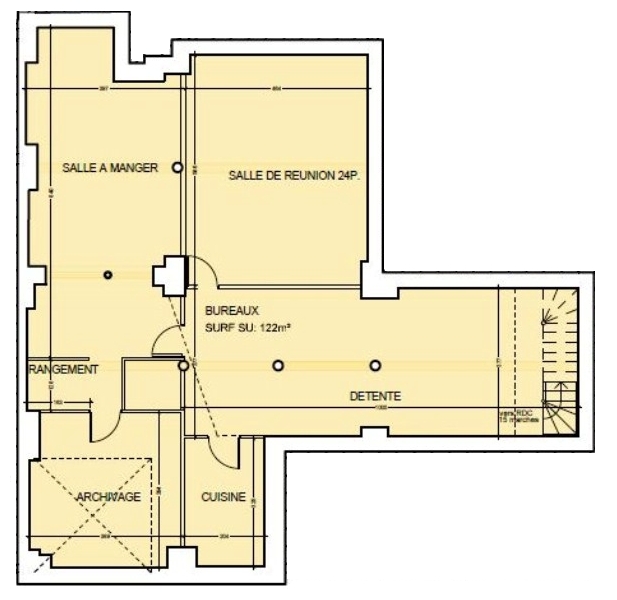
Au sous-sol : 1 espace ouvert, 1 aire de stockage et cuisine + caves (3*6+80)

- Câblage informatique. Fibre optique

- Chauffage individuel au gaz. Climatisation

Etat des biens : bon état général.

Les biens s'inscrivent dans un immeuble industriel, principalement constitué d'un bâtiment sur rue et cour.

A destination mixte, bureaux et résidentiel, ses façades pierres de Paris sont en bon état de ravalement.

Ses parties communes ont été rénovées

Ses prestations générales regroupent ascenseur, gardienne, digicode et accès sécurisés.

Tableau de surfaces

Niveau Type Surface Prix* Charges**
Etage BUREAUX 238 m² NC NC
Rez de chaussée BUREAUX 142 m² NC NC
Sous-sol LOC. POLYVALENTS 124 m² NC NC
Etage BUREAUX 94 m² NC NC

*Prix exprimé en €/m²
**Charges exprimées en € HT/m²/an

Conditions financières et juridiques

13 696 € / m²

Plus faible valeur du marché

1 191 € / m²

Plus forte valeur du marché

21 501 € / m²
  • Prix net vendeur

    8 190 000 €

  • Charges annuelles

    35 880 €

  • Impôt foncier

    En cours de validation

  • Taxe sur les bureaux

    23,18 €

  • Consommation énergétique

    En cours

  • Gaz à effet de serre

    En cours

  • Surfaces et affectations en cours de validation
  • Cession de l'actif libre de location ou d'occupation.
  • Vente de gré à gré.
  • Cession soumise aux droits d'enregistrement.
  • Le prix de vente s'exprime NET VENDEUR. L'assiette utilisée pour le calcul les droits de mutation n'inclut pas les honoraires hors TVA à la charge de l'acquéreur.

PARTAGER

Laurent MEIMOUN

Laurent MEIMOUN

Nous appeler
Selectionner cette offre Imprimer cette offre Partager cette offre par email
Réf. 5659

Les offres similaires