Transport en commun Saint Georges

Des bureaux à vendre à PARIS 09 (75009), métro Saint Georges, 229 m² de bureaux dans un immeuble ancien.

Saint Georges

229 m² non-divisibles

Nous consulter
0 €/m²


Immeuble, prestations et services

ERP/PMR Gardien Standing

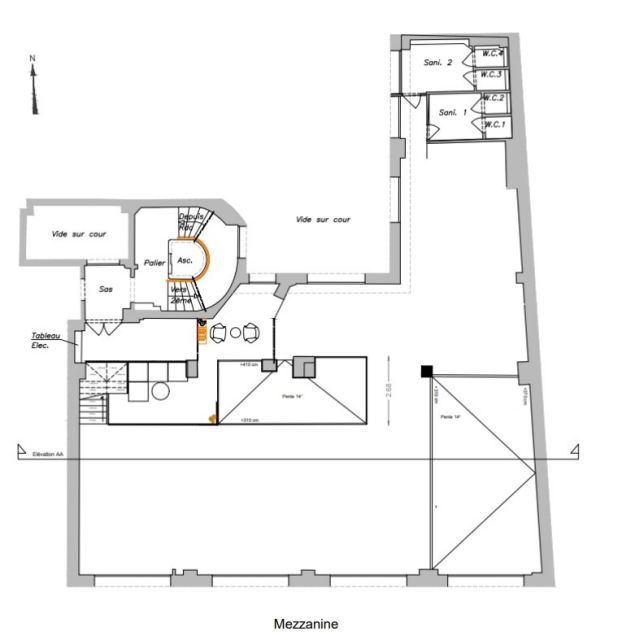
Au 1er étage, 229 m² de bureaux répartis en un grand open-space avec une mezzanine.

Plateau traversant.

Flexibilité d'aménagement.

Belle hauteur sous plafond.

Climatisation

Fibre optique et câblage informatique.

Etat des biens : bon état.

Les biens s'inscrivent dans un immeuble ancien, principalement constitué d'un bâtiment sur rue et cour.

A destination mixte, de bureaux et résidentiel, l'immeuble est détenu en copropriété.

Ses façades pierres de taille sont en bon état de ravalement, ses parties communes de bon standing.

Ses prestations générales regroupent ascenseurs, interphone, digicode, gardien et accès sécurisés.

Les informations sur les risques auxquels ce bien est exposé sont disponibles sur le site Géorisques : www.georisques.gouv.fr.

Tableau de surfaces

Niveau Type Surface Prix* Charges**
Etage BUREAUX 229 m² NC NC

*Prix exprimé en €/m²
**Charges exprimées en € HT/m²/an

Conditions financières et juridiques

0 € / m²

Plus faible valeur du marché

1 191 € / m²

Plus forte valeur du marché

21 501 € / m²
  • Prix net vendeur

    Nous consulter

  • Charges annuelles

    En cours de validation

  • Impôt foncier

    En cours de validation

  • Taxe sur les bureaux

    En cours de validation

  • Consommation énergétique

    En cours

  • Gaz à effet de serre

    En cours

  • Surfaces et affectations en cours de validation
  • Cession de l'actif libre de location ou d'occupation.
  • Vente de gré à gré.
  • Cession soumise aux droits d'enregistrement.
  • Le prix de vente s'exprime NET VENDEUR. L'assiette utilisée pour le calcul les droits de mutation n'inclut pas les honoraires hors TVA à la charge de l'acquéreur.

PARTAGER

Valérie AKNIN

Valérie AKNIN

Nous appeler
Selectionner cette offre Imprimer cette offre Partager cette offre par email
Réf. 6303

Les offres similaires