Transport en commun Porte de Champerret

Des bureaux à vendre à PARIS 17 (75017), métro Porte de Champerret, 460 m² de bureaux dans un immeuble ancien.

Porte de Champerret

460 m² non-divisibles

8 100 000 €
17 609 €/m²


Immeuble, prestations et services

Climatisation Cuisine Espace extérieur ERP/PMR Gardien Standing

En R+3, 460 m² de bureaux répartis en :

RDC sous verrière : grand open space.

Rez de patio actuellement organisé en espace détente / cuisine, 5 salles de réunion (dont une grande), locaux techniques et douche et sanitaire.

Flexibilité d'aménagement.

Nombreux extérieurs (patio et terrasses)

Jardin privatif au RDJ.

Terrasses aux R+1 et R+2.

Ascenseur.

Câblage informatique et fibre optique.

Reprise possible du mobilier.

60 postes de travail.

7 salles de réunion.

Surface de plancher : 460 m².

Surface de plancher avant déduction : 514 m.

Etat des biens : excellent état.

Les biens s'inscrivent dans un Hôtel particulier de cachet, principalement constitué d'un bâtiment sur rue et cour.

A destination exclusive de bureaux, l'immeuble est détenu en copropriété.

Ses façades pierres de taille sont en bon état de ravalement, ses parties communes de bon standing.

Ses prestations générales regroupent ascenseurs, interphone, digicode, gardien et accès sécurisés.

Les informations sur les risques auxquels ce bien est exposé sont disponibles sur le site Géorisques : www.georisques.gouv.fr.

Tableau de surfaces

Niveau Type Surface Prix* Charges**
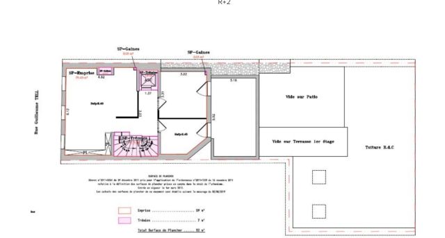
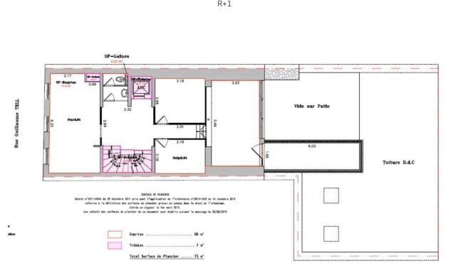
Etage BUREAUX 73 m² NC NC
Etage BUREAUX 52 m² NC NC
Etage BUREAUX 47 m² NC NC
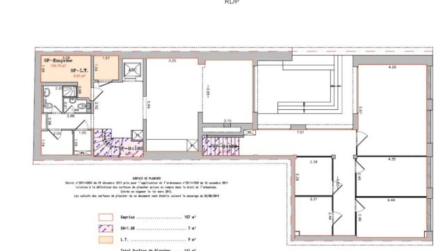
Rez de jardin BUREAUX 141 m² NC NC
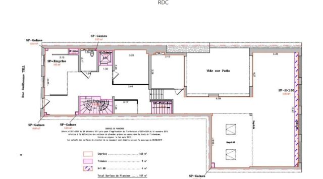
Rez de chauss BUREAUX 147 m² NC NC

*Prix exprimé en €/m²
**Charges exprimées en € HT/m²/an

Conditions financières et juridiques

17 609 € / m²

Plus faible valeur du marché

3 669 € / m²

Plus forte valeur du marché

18 966 € / m²
  • Prix net vendeur

    8 100 000 €

  • Charges annuelles

    7 820 €

  • Impôt foncier

    En cours de validation

  • Taxe sur les bureaux

    25,31 €

  • Consommation énergétique

    En cours

  • Gaz à effet de serre

    En cours

  • Surfaces et affectations en cours de validation
  • Cession de l'actif libre de location ou d'occupation.
  • Vente de gré à gré.
  • Cession soumise aux droits d'enregistrement.
  • Le prix de vente s'exprime NET VENDEUR. L'assiette utilisée pour le calcul les droits de mutation n'inclut pas les honoraires hors TVA à la charge de l'acquéreur.

PARTAGER

Valérie AKNIN

Valérie AKNIN

Nous appeler
Selectionner cette offre Imprimer cette offre Partager cette offre par email
Réf. 6430

Les offres similaires