Un hôtel particulier de bureaux à vendre à PARIS 17 (75017), métro Pereire, 580 m² sur 4 étages climatisés avec jardin et rooftop récemment rénovés.

Péreire

580 m² non-divisibles

11 000 000 €
18 966 €/m²


Immeuble, prestations et services

Climatisation Cuisine Espace extérieur ERP/PMR Rénovés Standing

Hôtel Particulier Façade en pierres de taille Parties communes de qualité Contrôle d'accès extérieur Digicode Interphone Ascenseur

Jardin paysager Rooftop Fibre optique Bureaux en bon état d'usage Cuisine équipée Belle hauteur sous plafond

Moulures Cheminées Climatisation Câblage / fibre optique

Rooftop Terrasses Jardin

Etat des biens : bon état d'usage.

Les biens s'inscrivent dans un un hôtel particulier, principalement constitué d'un bâtiment sur rue et jardin.

A destination exclusive de bureaux, l'immeuble est détenu en pleine propriété.

Ses façades pierres de taille sont en bon état de ravalement, ses parties communes de bon standing.

Les informations sur les risques auxquels ce bien est exposé sont disponibles sur le site Géorisques : www.georisques.gouv.fr.

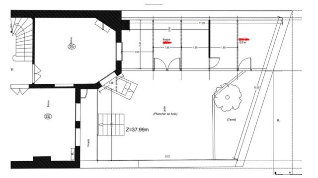
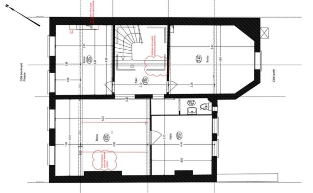
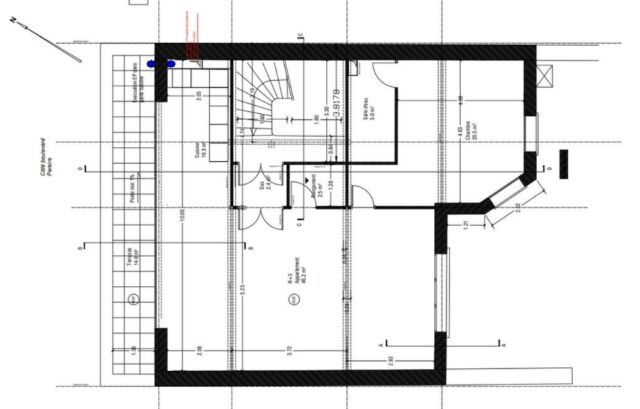
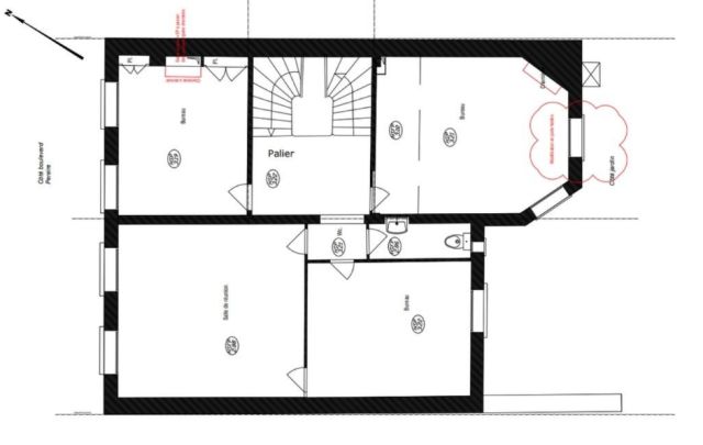
Tableau de surfaces

Niveau Type Surface Prix* Charges**
Etage BUREAUX 125 m² NC NC
Etage BUREAUX 100 m² NC NC
Etage BUREAUX 80 m² NC NC
Entresol BUREAUX 105 m² NC NC
Rez de jardin BUREAUX 60 m² NC NC
Rez de chaussée BUREAUX 110 m² NC NC

*Prix exprimé en €/m²
**Charges exprimées en € HT/m²/an

Conditions financières et juridiques

18 966 € / m²

Plus faible valeur du marché

3 669 € / m²

Plus forte valeur du marché

18 966 € / m²
  • Prix net vendeur

    11 000 000 €

  • Charges annuelles

    7 998 €

  • Impôt foncier

    En cours de validation

  • Taxe sur les bureaux

    24,69 €

  • Consommation énergétique

    En cours

  • Gaz à effet de serre

    En cours

  • Surfaces et affectations en cours de validation
  • Cession de l'actif libre de location ou d'occupation.
  • Vente de gré à gré.
  • Cession soumise aux droits d'enregistrement.
  • Le prix de vente s'exprime NET VENDEUR. L'assiette utilisée pour le calcul les droits de mutation n'inclut pas les honoraires hors TVA à la charge de l'acquéreur.

PARTAGER

Laurent MEIMOUN

Laurent MEIMOUN

Nous appeler
Selectionner cette offre Imprimer cette offre Partager cette offre par email
Réf. 6243

Les offres similaires