Transport en commun Porte de Clichy

Des bureaux à vendre à PARIS 17 (75017), métro Porte de Clichy, 458 m² de bureaux dans un immeuble récent.

Porte de Clichy

458 m² non-divisibles

1 680 000 €
3 669 €/m²


Immeuble, prestations et services

Espaces ouverts ERP/PMR Gardien Standing

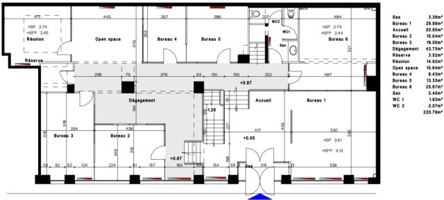
Au rez-de-chaussée, 1er étage et sous-sol, 458 m² de bureaux répartis en espaces ouverts et cloisonnés.

Moquette, faux-plafonds, doubles vitrages.

Câblage informatique.

Chauffage individuel gaz.

Etat des biens : bon état d'usage.

Les biens s'inscrivent dans un immeuble,principalement constitué d'un bâtiment sur rue et cour.

A destination mixte, de bureaux et résidentiel, l'immeuble est détenu en copropriété.

Ses façades modernes sont en bon état de ravalement, et ses parties communes de bon standing.

Ses prestations générales regroupent ascenseurs, interphone, digicode, gardien et accès sécurisés.

Les informations sur les risques auxquels ce bien est exposé sont disponibles sur le site Géorisques : www.georisques.gouv.fr.

Tableau de surfaces

Niveau Type Surface Prix* Charges**
Etage BUREAUX 36 m² NC NC
Rez de chaussée BUREAUX 221 m² NC NC
Sous-sol BUREAUX 201 m² NC NC

*Prix exprimé en €/m²
**Charges exprimées en € HT/m²/an

Conditions financières et juridiques

3 669 € / m²

Plus faible valeur du marché

3 669 € / m²

Plus forte valeur du marché

18 966 € / m²
  • Prix net vendeur

    1 680 000 €

  • Charges annuelles

    11 908 €

  • Impôt foncier

    7,77 €

  • Taxe sur les bureaux

    En cours de validation

  • Consommation énergétique

    En cours

  • Gaz à effet de serre

    En cours

  • Surfaces et affectations en cours de validation
  • Cession de l'actif libre de location ou d'occupation.
  • Vente de gré à gré.
  • Cession soumise aux droits d'enregistrement.
  • Le prix de vente s'exprime NET VENDEUR. L'assiette utilisée pour le calcul les droits de mutation n'inclut pas les honoraires hors TVA à la charge de l'acquéreur.

PARTAGER

Valérie AKNIN

Valérie AKNIN

Nous appeler
Selectionner cette offre Imprimer cette offre Partager cette offre par email
Réf. 6301

Les offres similaires