Transport en commun Porte de Champerret

Des bureaux à vendre à PARIS 17 (75017), métro Porte de Champerret, 317 m² de bureaux dans un immeuble ancien.

Porte de Champerret

287 m² non-divisibles

2 460 000 €
8 572 €/m²


Immeuble, prestations et services

Espaces ouverts Chauffage collectif ERP/PMR Gardien Standing

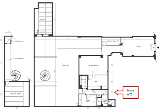
Au rez-de-chaussée et mezzanine, 317 m² de bureaux lumineux, répartis en espaces ouverts ou cloisonnés.

Cloisonnement amovible/léger.

Hauteur sous plafond : 4,5 m

Eclairage naturel par verrière .

Entrée indépendante sur rue.

Possibilité de retrouver aspect poutres et poteaux béton.

Câblage informatique, courant triphasé.Rafraîchissement d’air.

Etat des biens : bon état d'usage.

Les biens s'inscrivent dans un immeuble de 1930, principalement constitué d'un bâtiment sur rue et cour, sur la parcelle cadastrale 1701 AW - n°6.

A destination mixte, de bureaux et résidentiel, l'immeuble est détenu en copropriété.

Ses façades pierres de taille sont en bon état de ravalement, ses parties communes de bon standing.

Les prestations de chauffage sont produites par l'immeuble (gaz).

Ses prestations générales regroupent ascenseurs, interphone, digicode, gardien et accès sécurisés.

Les informations sur les risques auxquels ce bien est exposé sont disponibles sur le site Géorisques : www.georisques.gouv.fr.

Tableau de surfaces

Niveau Type Surface Prix* Charges**
Rez de chaussée BUREAUX 287 m² NC NC
Mezzanine BUREAUX 30 m² NC NC

*Prix exprimé en €/m²
**Charges exprimées en € HT/m²/an

Conditions financières et juridiques

8 572 € / m²

Plus faible valeur du marché

3 669 € / m²

Plus forte valeur du marché

18 966 € / m²
  • Prix net vendeur

    2 460 000 €

  • Charges annuelles

    17 220 €

  • Impôt foncier

    13,24 €

  • Taxe sur les bureaux

    En cours de validation

  • Consommation énergétique

    En cours

  • Gaz à effet de serre

    En cours

  • Surfaces et affectations en cours de validation
  • Cession de l'actif libre de location ou d'occupation.
  • Vente de gré à gré.
  • Cession soumise aux droits d'enregistrement.
  • Le prix de vente s'exprime NET VENDEUR. L'assiette utilisée pour le calcul les droits de mutation n'inclut pas les honoraires hors TVA à la charge de l'acquéreur.

PARTAGER

Valérie AKNIN

Valérie AKNIN

Nous appeler
Selectionner cette offre Imprimer cette offre Partager cette offre par email
Réf. 6259

Les offres similaires