Transport en commun Place de Clichy

Des bureaux à vendre à PARIS 17 (75017), métro Place de Clichy, 450 m² de bureaux dans un immeuble récent.

Place de Clichy

450 m² non-divisibles

6 500 000 €
14 445 €/m²


Immeuble, prestations et services

Espaces ouverts ERP/PMR Rénovés Gardien Standing

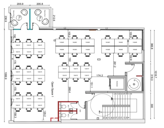
En R+2, 450 m² de bureaux répartis en espaces ouverts et cloisonnés.

Faux-plafonds, doubles vitrages.

Câblage informatique.

Climatisation.

Etat des biens : rénovés.

Les biens s'inscrivent dans un immeuble récent, principalement constitué d'un bâtiment sur rue et cour.

A destination exclusive de bureaux, l'immeuble est détenu en pleine propriété.

Ses façades modernes sont en bon état de ravalement, et ses parties communes de bon standing.

Ses prestations générales regroupent ascenseurs, interphone, digicode, gardien et accès sécurisés.

Les informations sur les risques auxquels ce bien est exposé sont disponibles sur le site Géorisques : www.georisques.gouv.fr.

Tableau de surfaces

Niveau Type Surface Prix* Charges**
Immeuble BUREAUX 450 m² NC NC

*Prix exprimé en €/m²
**Charges exprimées en € HT/m²/an

Conditions financières et juridiques

14 445 € / m²

Plus faible valeur du marché

3 669 € / m²

Plus forte valeur du marché

18 966 € / m²
  • Prix net vendeur

    6 500 000 €

  • Charges annuelles

    En cours de validation

  • Impôt foncier

    En cours de validation

  • Taxe sur les bureaux

    En cours de validation

  • Consommation énergétique

    En cours

  • Gaz à effet de serre

    En cours

  • Surfaces et affectations en cours de validation
  • Cession de l'actif libre de location ou d'occupation.
  • Vente de gré à gré.
  • Cession soumise aux droits d'enregistrement.
  • Le prix de vente s'exprime NET VENDEUR. L'assiette utilisée pour le calcul les droits de mutation n'inclut pas les honoraires hors TVA à la charge de l'acquéreur.

PARTAGER

Valérie AKNIN

Valérie AKNIN

Nous appeler
Selectionner cette offre Imprimer cette offre Partager cette offre par email
Réf. 6247

Les offres similaires