Transport en commun La Fourche

Des bureaux à vendre à PARIS 17 (75017), métro La Fourche, 222 m² de bureaux dans un immeuble récent.

La Fourche

203 m² non-divisibles

1 500 000 €
7 390 €/m²


Immeuble, prestations et services

Climatisation Espaces ouverts ERP/PMR Gardien Standing

Au rez-de-chaussée et 1er étage, 222 m² de bureaux répartis en espaces ouverts et cloisonnés.

Faux-plafonds, doubles vitrages.

Câblage informatique.

Chauffage individuel au gaz, climatisation.

Verrière.

Etat des biens : très bon état d'usage.

Les biens s'inscrivent dans un immeuble récent, principalement constitué d'un bâtiment sur rue et cour.

A destination de bureaux et résidentiel, l'immeuble est détenu en copropriété.

Ses façades modernes sont en bon état de ravalement, et ses parties communes de bon standing.

Ses prestations générales regroupent ascenseurs, interphone, digicode, gardien et accès sécurisés

Les informations sur les risques auxquels ce bien est exposé sont disponibles sur le site Géorisques : www.georisques.gouv.fr.

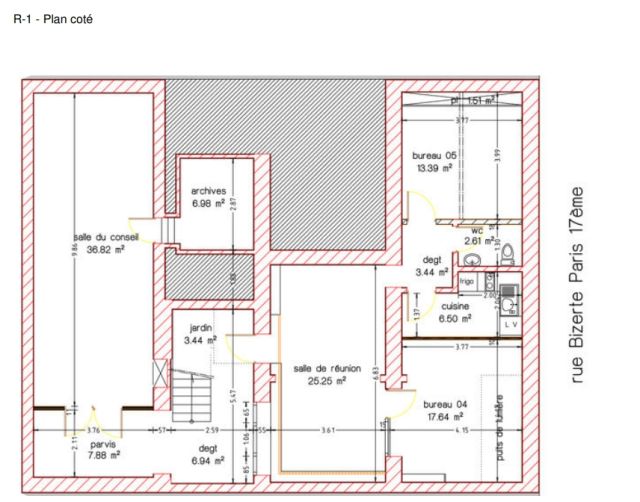
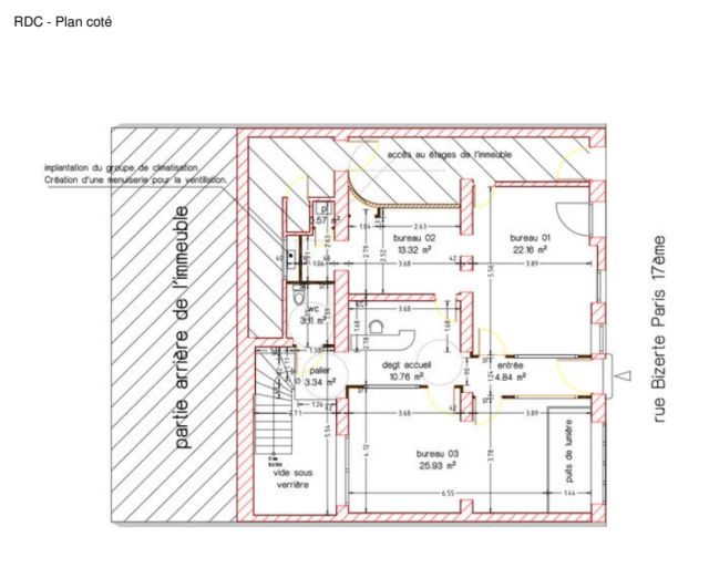
Tableau de surfaces

Niveau Type Surface Prix* Charges**
Rez de chaussée BUREAUX 85 m² NC NC
Etage BUREAUX 118 m² NC NC

*Prix exprimé en €/m²
**Charges exprimées en € HT/m²/an

Conditions financières et juridiques

7 390 € / m²

Plus faible valeur du marché

3 669 € / m²

Plus forte valeur du marché

18 966 € / m²
  • Prix net vendeur

    1 500 000 €

  • Charges annuelles

    5 075 €

  • Impôt foncier

    19,01 €

  • Taxe sur les bureaux

    8,68 €

  • Consommation énergétique

    En cours

  • Gaz à effet de serre

    En cours

  • Surfaces et affectations en cours de validation
  • Cession de l'actif libre de location ou d'occupation.
  • Vente de gré à gré.
  • Cession soumise aux droits d'enregistrement.
  • Le prix de vente s'exprime NET VENDEUR. L'assiette utilisée pour le calcul les droits de mutation n'inclut pas les honoraires hors TVA à la charge de l'acquéreur.

PARTAGER

Valérie AKNIN

Valérie AKNIN

Nous appeler
Selectionner cette offre Imprimer cette offre Partager cette offre par email
Réf. 6119

Les offres similaires