Des bureaux à vendre à PARIS 17 (75017), métro Villiers, 586 m² de bureaux divisibles à partir de 259 m² dans un immeuble indépendant.

VILLIERS

586 m² divisibles à partir de 259 m²

10 600 000 €
18 089 €/m²


Immeuble, prestations et services

Immeuble indépendant Espace extérieur ERP/PMR Rénovés Gardien Standing

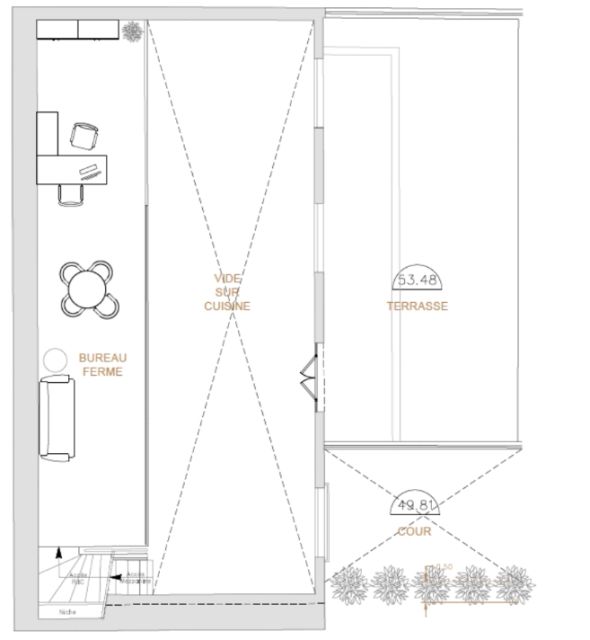
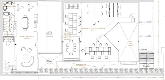
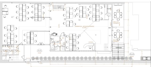
Ensemble atypique et indépendant, situé en fond de copropriété, est lumineux et agréable.

Grande partie sous verrière.

Grands plateaux modulables et très lumineux.

Revêtement de sol : sol brut de béton sur le bâtiment avant et arrière au RDC + parquet au R+1 du bâtiment arrière.

Câblage informatique.

Climatisation réversible.

Terrasse de 50 m².

Cour intérieure privative.

Local vélos.

Etat des biens : en l'état ou rénové.

Les biens s'inscrivent dans un immeuble récent, principalement constitué d'un bâtiment sur rue et cour.

A destination exclusive de bureaux, l'immeuble est détenu en copropriété.

Ses façades modernes sont en bon état de ravalement, et ses parties communes de bon standing.

Ses prestations générales regroupent portail indépendant, ascenseurs, interphone, digicode, gardien et accès sécurisés.

Les informations sur les risques auxquels ce bien est exposé sont disponibles sur le site Géorisques : www.georisques.gouv.fr.

Tableau de surfaces

Niveau Type Surface Prix* Charges**
Rez de chaussée BUREAUX 196 m² NC NC
Etage BUREAUX 131 m² NC NC
Rez de chaussée BUREAUX 137 m² NC NC
Etage BUREAUX 90 m² NC NC
Etage BUREAUX 32 m² NC NC

*Prix exprimé en €/m²
**Charges exprimées en € HT/m²/an

Conditions financières et juridiques

18 089 € / m²

Plus faible valeur du marché

3 669 € / m²

Plus forte valeur du marché

18 966 € / m²
  • Prix net vendeur

    10 600 000 €

  • Charges annuelles

    En cours de validation

  • Impôt foncier

    En cours de validation

  • Taxe sur les bureaux

    En cours de validation

  • Consommation énergétique

    En cours

  • Gaz à effet de serre

    En cours

  • Surfaces et affectations en cours de validation
  • Cession de l'actif libre de location ou d'occupation.
  • Vente de gré à gré.
  • Cession soumise aux droits d'enregistrement.
  • Le prix de vente s'exprime NET VENDEUR. L'assiette utilisée pour le calcul les droits de mutation n'inclut pas les honoraires hors TVA à la charge de l'acquéreur.

PARTAGER

Valérie AKNIN

Valérie AKNIN

Nous appeler
Selectionner cette offre Imprimer cette offre Partager cette offre par email
Réf. 6067

Les offres similaires