Transport en commun Place d'Italie

Des bureaux à vendre à PARIS 13 (75013), métro Place d'Italie, 935 m² de bureaux divisibles à partir de 69 m² dans un immeuble récent.

Place d'Italie

935 m² divisibles à partir de 69 m²

10 156 450 €
10 863 €/m²


Immeuble, prestations et services

Climatisation Parking Chauffage collectif ERP/PMR Gardien Standing

Des plateaux de bureaux lumineux avec des vues dégagées sur Paris dans les étages.

Moquette, faux-plafonds, doubles vitrages.

Câblage informatique.

Env. 2,50 m de hauteur sous plafond.

Remplacement prévu des radiateurs par des pompes à chaleur pour le chauffage et la climatisation.

ERP possible de : 100 pers. au RDC et 19 pers. au R+1 (1 pers./4 m²).

Etat des biens : très bon état.

Les biens s'inscrivent dans un immeuble récent, principalement constitué d'un bâtiment sur rue et cour.

A destination mixte, de bureaux et résidentiel, l'immeuble est détenu en copropriété.

Ses façades en pierre de parement ont été ravalée récemment et ses parties communes sont de bon standing.

Ses prestations générales regroupent 2 ascenseurs, interphone, digicode, gardien et accès sécurisés, cour intérieure arborée.

Les informations sur les risques auxquels ce bien est exposé sont disponibles sur le site Géorisques : www.georisques.gouv.fr.

Tableau de surfaces

Niveau Type Surface Prix* Charges**
Etage BUREAUX 245 m² 10 250 € 18 €
Rez de chaussée BUREAUX 159 m² 10 450 € 18 €
Rez de chaussée BUREAUX 69 m² 10 450 € 18 €
Etage BUREAUX 210 m² 11 500 € 18 €
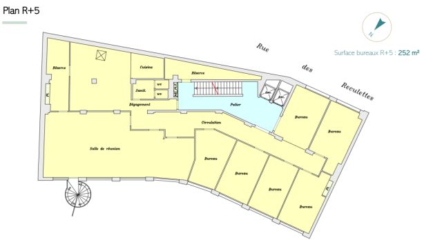
Etage BUREAUX 252 m² 11 300 € 18 €

*Prix exprimé en €/m²
**Charges exprimées en € HT/m²/an

Parking Nombre Prix /unité
Extérieur 3 34500 €

Conditions financières et juridiques

10 863 € / m²

Plus faible valeur du marché

5 400 € / m²

Plus forte valeur du marché

10 863 € / m²
  • Prix net vendeur

    10 156 450 €

  • Charges annuelles

    16 830 €

  • Impôt foncier

    23 €

  • Taxe sur les bureaux

    23 €

  • Consommation énergétique

    En cours

  • Gaz à effet de serre

    En cours

  • Surfaces et affectations en cours de validation
  • Type de bail :

    *

  • Régime fiscal :

    *

  • Cession de l'actif libre de location ou d'occupation.
  • Vente de gré à gré.
  • Cession soumise aux droits d'enregistrement.
  • Le prix de vente s'exprime NET VENDEUR. L'assiette utilisée pour le calcul les droits de mutation n'inclut pas les honoraires hors TVA à la charge de l'acquéreur.

PARTAGER

Valérie AKNIN

Valérie AKNIN

Nous appeler
Selectionner cette offre Imprimer cette offre Partager cette offre par email
Réf. 6244

Les offres similaires