Transport en commun BIBLIOTHEQUE FRANCOIS MITTERAND

Des locaux commerciaux à vendre à PARIS 13 (75013), RER BIBLIOTHEQUE FRANCOIS MITTERAND, 250 m² dans un immeuble moderne

BIBLIOTHEQUE FRANCOIS MITTERAND

250 m² divisibles à partir de 250 m²

1 350 000 €
5 400 €/m²


Immeuble, prestations et services

Rénovés Standing

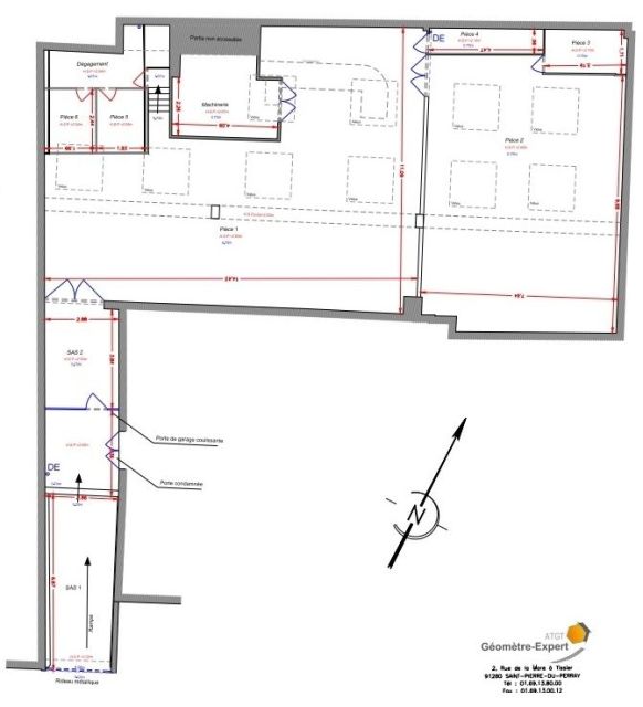
Surface : 250 m² Carrez, l’accès au SAS, lot 531, commun avec le lot 530 d’une superficie de 9.23 m² est à ajouter à la surface des 250 m².

Destination du local : local commercial

Accès privatif et indépendant.

Etat des biens : rénovés.

Les biens s'inscrivent dans un immeuble récent, édifié dans les années 1980, principalement constitué d'un bâtiment sur rue, sur la parcelle cadastrale CP 0095 d'une contenance de 2.168 m².

A destination de bureaux, l'immeuble est détenu en copropriété.

Ses façades modernes sont en bon état de ravalement, et ses parties communes de bon standing.

Ses prestations générales regroupent ascenseurs, digicode et accès sécurisés.

Les informations sur les risques auxquels ce bien est exposé sont disponibles sur le site Géorisques : www.georisques.gouv.fr.

Tableau de surfaces

Niveau Type Surface Prix* Charges**
Rez de chaussée BUREAUX 250 m² NC NC

*Prix exprimé en €/m²
**Charges exprimées en € HT/m²/an

Conditions financières et juridiques

5 400 € / m²

Plus faible valeur du marché

5 400 € / m²

Plus forte valeur du marché

10 863 € / m²
  • Prix net vendeur

    1 350 000 €

  • Charges annuelles

    6 840 €

  • Impôt foncier

    4676 €

  • Taxe sur les bureaux

    En cours de validation

  • Consommation énergétique

    En cours

  • Gaz à effet de serre

    En cours

  • Surfaces et affectations en cours de validation
  • Cession de l'actif libre de location ou d'occupation.
  • Vente de gré à gré.
  • Cession soumise aux droits d'enregistrement.
  • Le prix de vente s'exprime NET VENDEUR. L'assiette ne comprend pas les honoraires hors TVA à la charge de l'acquéreur.

PARTAGER

Laurent MEIMOUN

Laurent MEIMOUN

Nous appeler
Selectionner cette offre Imprimer cette offre Partager cette offre par email
Réf. 6181

Les offres similaires