Transport en commun Glacière

Des bureaux à vendre à PARIS 13 (75013), métro Glacière, 674 m² de bureaux augmentés de 128 m² en sous-sol à usage d'archives et locaux techniques dans un immeuble récent.

Glacière

802 m² non-divisibles

4 800 000 €
5 986 €/m²


Immeuble, prestations et services

Climatisation Salle de réunion Espace extérieur ERP/PMR Gardien Standing

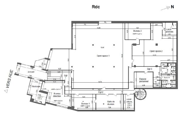
Au rez-de-chaussée, 674 m² de bureaux répartis en 1 accueil, 5 espaces de travail, dont 1 salle de réunion, 1 grand open space, 8 sanitaires, 1 cafétaria,.

Escalier de secours.

Au sous-sol : 128 m² répartis en 2 locaux techniques, réserves/archives.

Bureaux bénéficiant d’un éclairage zénithal (12 skydomes) en partie centrale et de quelques parties vitrées sur jardins en partie latérale.

Climatisation réversible.

Câblage informatique, fibre optique.

Surface PMR et ERP. Ideal centres de formation, associations ou start-ups à la recherche d’un bon capacitaire.

Etat des biens : état d'usage.

Possibilité de louer des parkings en sous-sol.

Possibilité d’acheter un parking en sous-sol.

Les biens s'inscrivent dans un immeuble récent, principalement constitué d'un bâtiment sur rue et cour.

A destination mixte, de bureaux et résidentiel, l'immeuble est détenu en copropriété.

Ses façades modernes sont en bon état de ravalement, et ses parties communes de bon standing.

Ses prestations générales regroupent ascenseurs, interphone, digicode, gardien et accès sécurisés.

Tableau de surfaces

Niveau Type Surface Prix* Charges**
Rez de chaussée BUREAUX 674 m² NC NC
Sous-sol ARCHIVES 128 m² NC NC

*Prix exprimé en €/m²
**Charges exprimées en € HT/m²/an

Conditions financières et juridiques

5 986 € / m²

Plus faible valeur du marché

5 400 € / m²

Plus forte valeur du marché

10 863 € / m²
  • Prix net vendeur

    4 800 000 €

  • Charges annuelles

    En cours de validation

  • Impôt foncier

    12,09 €

  • Taxe sur les bureaux

    19,63 €

  • Consommation énergétique

    En cours

  • Gaz à effet de serre

    En cours

  • Surfaces et affectations en cours de validation
  • Cession de l'actif libre de location ou d'occupation.
  • Vente de gré à gré.
  • Cession soumise aux droits d'enregistrement.
  • Le prix de vente s'exprime NET VENDEUR. L'assiette utilisée pour le calcul les droits de mutation n'inclut pas les honoraires hors TVA à la charge de l'acquéreur.

PARTAGER

Valérie AKNIN

Valérie AKNIN

Nous appeler
Selectionner cette offre Imprimer cette offre Partager cette offre par email
Réf. 5835

Les offres similaires