Des bureaux à vendre à PARIS 11 (75011), métro Voltaire, 306 m² de bureaux dans un immeuble ancien.

Voltaire

306 m² non-divisibles

2 900 000 €
9 478 €/m²


Immeuble, prestations et services

ERP/PMR Rénovés Gardien Standing

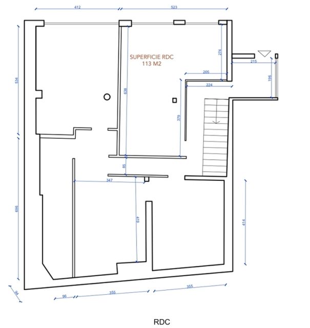
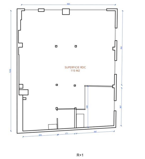
En R+2, 306 m² de bureaux répartis en

Moquette, faux-plafonds, doubles vitrages.

Câblage informatique.

Etat des biens : rénovés.

Les biens s'inscrivent dans un immeuble ancien, principalement constitué d'un bâtiment sur rue et cour, sur la parcelle cadastrale BL 24 d'une contenance de 1 152 m².

A destination mixte, dee bureaux et résidentiel, l'immeuble est détenu en copropriété.

Ses façades pierres de taille sont en bon état de ravalement, ses parties communes de bon standing.

Ses prestations générales regroupent ascenseurs, interphone, digicode, gardien et accès sécurisés.

Les informations sur les risques auxquels ce bien est exposé sont disponibles sur le site Géorisques : www.georisques.gouv.fr.

Tableau de surfaces

Niveau Type Surface Prix* Charges**
Lot BUREAUX 306 m² NC NC

*Prix exprimé en €/m²
**Charges exprimées en € HT/m²/an

Conditions financières et juridiques

9 478 € / m²

Plus faible valeur du marché

6 536 € / m²

Plus forte valeur du marché

13 563 € / m²
  • Prix net vendeur

    2 900 000 €

  • Charges annuelles

    En cours de validation

  • Impôt foncier

    15,8 €

  • Taxe sur les bureaux

    En cours de validation

  • Consommation énergétique

    En cours

  • Gaz à effet de serre

    En cours

  • Surfaces et affectations en cours de validation
  • Cession de l'actif libre de location ou d'occupation.
  • Vente de gré à gré.
  • Cession soumise aux droits d'enregistrement.
  • Le prix de vente s'exprime NET VENDEUR. L'assiette utilisée pour le calcul les droits de mutation n'inclut pas les honoraires hors TVA à la charge de l'acquéreur.

PARTAGER

Valérie AKNIN

Valérie AKNIN

Nous appeler
Selectionner cette offre Imprimer cette offre Partager cette offre par email
Réf. 6428

Les offres similaires