Transport en commun COURONNES-MENILMONTANT

Des locaux commerciaux de type loft à vendre à PARIS 11 (75011), métro COURONNES, 258,21 m² de locaux commerciaux dans un immeuble sur cour jouxtant la "Maison des Métallos".

COURONNES-MENILMONTANT

258 m² non-divisibles

3 499 000 €
13 563 €/m²


Immeuble, prestations et services

Cuisine Espace extérieur ERP/PMR Gardien Standing

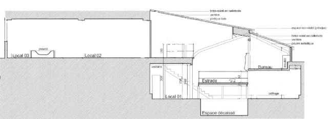
Surfaces hors Carrez : au rez-de-chaussée : 129,55 m², au sous-sol : 137,58 m².

Hauteur-sous-plafond entre 2,84 et 2,92 m.

Verrière. Parquet. Grande cuisine

2 sanitaires dont 1 PMR. Douche.

Chauffage individuel au gaz.

ERP de 5ème catégorie. Capacité 99 personnes simultanées.

Etat des biens : bon état général.

Les biens s'inscrivent dans un immeuble construit dans les années 1930, principalement constitué d'un bâtiment sur cour et jardin.

A destination mixte, bureaux et résidentiel, ses façades pierres et briques sont en bon état de ravalement.

Ses parties communes sont de bon standing.

Ses prestations générales regroupent interphone, digicode, gardien, accès sécurisés.

Tableau de surfaces

Niveau Type Surface Prix* Charges**
Rez de chaussée COMMERCIAL 130 m² NC NC
Sous-sol COMMERCIAL 128 m² NC NC

*Prix exprimé en €/m²
**Charges exprimées en € HT/m²/an

Conditions financières et juridiques

13 563 € / m²

Plus faible valeur du marché

6 536 € / m²

Plus forte valeur du marché

13 563 € / m²
  • Prix net vendeur

    3 499 000 €

  • Charges annuelles

    2 799 €

  • Impôt foncier

    960 €

  • Taxe sur les bureaux

    19,51 €

  • Consommation énergétique

    En cours

  • Gaz à effet de serre

    En cours

  • Surfaces et affectations en cours de validation
  • Cession de l'actif libre de location ou d'occupation.
  • Vente de gré à gré.
  • Cession soumise aux droits d'enregistrement.
  • Le prix de vente s'exprime NET VENDEUR. L'assiette utilisée pour le calcul les droits de mutation n'inclut pas les honoraires hors TVA à la charge de l'acquéreur.

PARTAGER

Laurent MEIMOUN

Laurent MEIMOUN

Nous appeler
Selectionner cette offre Imprimer cette offre Partager cette offre par email
Réf. 3385

Les offres similaires