Transport en commun Chemin Vert

Des bureaux à vendre à PARIS 11 (75011), métro Chemin Vert, 454,20 m² de bureaux dans un immeuble ancien.

Chemin Vert

454 m² non-divisibles

3 800 000 €
8 371 €/m²


Immeuble, prestations et services

Climatisation ERP/PMR Immeuble Haussmannien Rénovés Gardien Standing

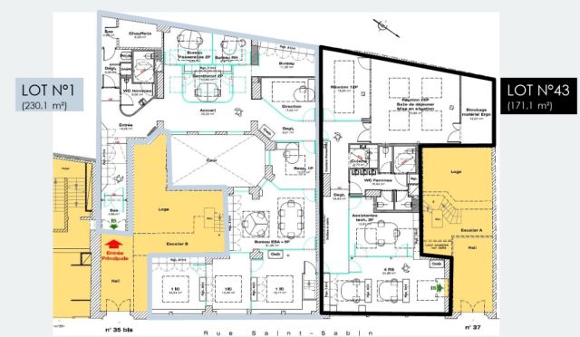
Au rez-de-chaussée et sous-sol, 454,20 m² de bureaux ERP, répartis en accueil avec espace d’attente, espaces cloisonnés, sanitaire PMR

Escalier intérieur.

Hauteur sous plafond : 3,60 m

Skydômes au 35 bis.

Parquet, faux-plafonds, doubles vitrages.

Câblage informatique et et fibre optique.

Chauffage individuel gaz.

Etat des biens : rénovés en 2017.

Les biens s'inscrivent dans un immeuble haussmannien édifié en R+6 sur sous-sol, principalement constitué d'un bâtiment sur rue et cour, sur la parcelle cadastrale BE 22 d'une contenance de 638 m².

A destination mixte, de bureaux et résidentiel, l'immeuble est détenu en copropriété.

Ses façades pierres de taille sont en bon état de ravalement, ses parties communes de bon standing.

Ses prestations générales regroupent ascenseurs, interphone, digicode, gardien et accès sécurisés.

Les informations sur les risques auxquels ce bien est exposé sont disponibles sur le site Géorisques : www.georisques.gouv.fr.

Tableau de surfaces

Niveau Type Surface Prix* Charges**
Rez de chaussée BUREAUX 171 m² NC NC
Rez de chaussée BUREAUX 230 m² NC NC
Sous-sol BUREAUX 53 m² NC NC

*Prix exprimé en €/m²
**Charges exprimées en € HT/m²/an

Conditions financières et juridiques

8 371 € / m²

Plus faible valeur du marché

6 536 € / m²

Plus forte valeur du marché

13 563 € / m²
  • Prix net vendeur

    3 800 000 €

  • Charges annuelles

    10 442 €

  • Impôt foncier

    78 €

  • Taxe sur les bureaux

    En cours de validation

  • Consommation énergétique

    En cours

  • Gaz à effet de serre

    En cours

  • Surfaces et affectations en cours de validation
  • Cession de l'actif libre de location ou d'occupation.
  • Vente de gré à gré.
  • Cession soumise aux droits d'enregistrement.
  • Le prix de vente s'exprime NET VENDEUR. L'assiette utilisée pour le calcul les droits de mutation n'inclut pas les honoraires hors TVA à la charge de l'acquéreur.

PARTAGER

Valérie AKNIN

Valérie AKNIN

Nous appeler
Selectionner cette offre Imprimer cette offre Partager cette offre par email
Réf. 6130

Les offres similaires