Des bureaux à louer à PARIS 08 (75008), métro F.D. ROOSEVELT, 431 m² de bureaux divisibles à partir de 108 m², dans un immeuble du Triangle d'or parisien, aux parties communes rénovées

GEORGE V

431 m² divisibles à partir de 109 m²

553 €


Immeuble, prestations et services

Salle de réunion Espace extérieur ERP/PMR Rénovés

Au rez-de-chaussée et 1er étage du batiment C, pratiques et fonctionnels, 322 m² de bureaux climatisés avec terrasses.

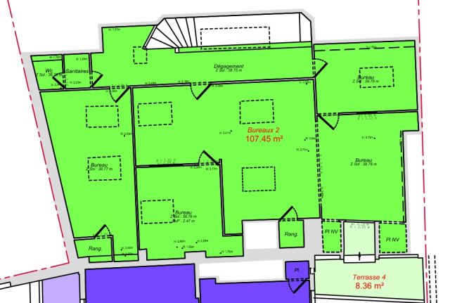
Au 2ème étage du batiment A, pratiques et fonctionnels, 109 m² très lumineux composés d'une entrée, 4 bureaux et 1 grande salle de réunion.

Cablage. Fibre. Parquet

Etat des biens : très bon état général.

Les biens s'inscrivent dans un immeuble ancien du triangle d’or parisien, construit dans les années 1900 et entièrement rénové, principalement constitué d'un bâtiment sur rue et cour.

A destination exclusif de bureaux, ses façades sont en très bon état de ravalement.

Ses parties communes ont été rénovées.

Ses prestations générales regroupent ascenseurs, interphone, digicode, accès sécurisés.

Les informations sur les risques auxquels ce bien est exposé sont disponibles sur le site Géorisques : www.georisques.gouv.fr.

Tableau de surfaces

Niveau Type Surface Loyer* Charges**
Etage BUREAUX 200 m² NC NC
Rez de chaussée BUREAUX 122 m² NC NC
Etage BUREAUX 109 m² NC NC

*Loyer exprimé en € HT HC /m²/an
**Charges exprimées en € HT/m²/an

Conditions financières et juridiques

  • Loyer /m²

    553 €

  • Loyer mensuel

    19 833 €

  • Charges annuelles

    32 325 €

  • Impôt foncier

    En cours de validation

  • Taxe sur les bureaux

    19,51 €

  • Consommation énergétique

    En cours

  • Gaz à effet de serre

    En cours

  • Surfaces et affectations en cours de validation
  • Type de bail :

    précaire 23 mois

  • Régime fiscal :

    T.V.A.

  • Dépot de garantie :

    3 mois de loyer et charges.

  • Modalité :

    loyer payable par trimestre et d'avance.

  • Indexation :

    annuelle indice ILAT.


PARTAGER

Laurent MEIMOUN

Laurent MEIMOUN

Nous appeler
Selectionner cette offre Imprimer cette offre Partager cette offre par email
Réf. 6488

Les offres similaires