Transport en commun MIROMESNIL

Des bureaux à vendre à PARIS 08 (75008), métro Miromesnil, 237 m² de bureaux dans un immeuble ancien.

MIROMESNIL

237 m² non-divisibles

3 800 000 €
16 034 €/m²


Immeuble, prestations et services

Cuisine Espace extérieur ERP/PMR Immeuble Haussmannien Gardien Standing

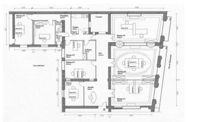
Au 2ème étage, 237 m² de bureaux répartis en 1 galerie d"entrée, 3 grands bureaux, 4 bureaux indépendants, local technique, cuisine, sanitaires.

Parquet, moulures, cheminées.

Belle hauteur sous plafond.

Climatisation réversible.

Balcon filant.

Etat des biens : très bon état.

Les biens s'inscrivent dans un immeuble haussmannien, principalement constitué d'un bâtiment sur rue et cour.

A destination mixte, de bureaux et résidentiel, l'immeuble est détenu en copropriété.

Ses façades pierres de taille sont en bon état de ravalement, ses parties communes de bon standing.

Ses prestations générales regroupent ascenseurs, interphone, digicode, gardien et accès sécurisés.

Les informations sur les risques auxquels ce bien est exposé sont disponibles sur le site Géorisques : www.georisques.gouv.fr.

Tableau de surfaces

Niveau Type Surface Prix* Charges**
Etage BUREAUX 237 m² NC NC

*Prix exprimé en €/m²
**Charges exprimées en € HT/m²/an

Conditions financières et juridiques

16 034 € / m²

Plus faible valeur du marché

8 462 € / m²

Plus forte valeur du marché

38 000 € / m²
  • Prix net vendeur

    3 800 000 €

  • Charges annuelles

    4 531 €

  • Impôt foncier

    En cours de validation

  • Taxe sur les bureaux

    En cours de validation

  • Consommation énergétique

    En cours

  • Gaz à effet de serre

    En cours

  • Surfaces et affectations en cours de validation
  • Cession de l'actif libre de location ou d'occupation.
  • Vente de gré à gré.
  • Cession soumise aux droits d'enregistrement.
  • Le prix de vente s'exprime NET VENDEUR. L'assiette utilisée pour le calcul les droits de mutation n'inclut pas les honoraires hors TVA à la charge de l'acquéreur.

PARTAGER

Valérie AKNIN

Valérie AKNIN

Nous appeler
Selectionner cette offre Imprimer cette offre Partager cette offre par email
Réf. 6421

Les offres similaires