Transport en commun VILLIERS

Des bureaux à vendre à PARIS 08 (75008), métro VILLIERS, 208,37 m² Carrez de bureaux dans un immeuble ancien de bon standing.

VILLIERS

243 m² non-divisibles

2 190 000 €
9 013 €/m²


Immeuble, prestations et services

Cuisine ERP/PMR Gardien Standing

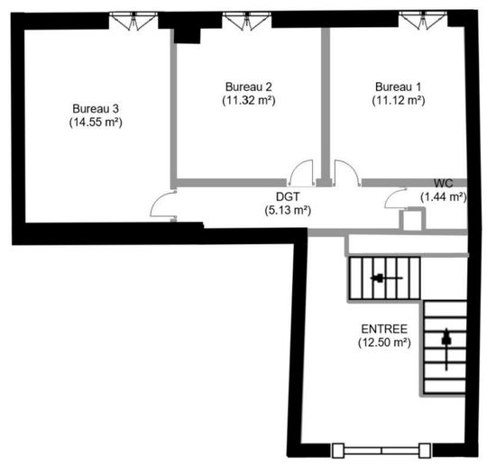
Au rez-de-chaussée, 56,06 m² composés de : 1 accueil, 3 bureaux fermés avec fenêtre sur cour, sanitaires

Au sous-sol, 190 m² composés de :

- 4 espaces fermés, cuisine équipée, 5 douches avec vestiaires, sanitaires

- Un local technique avec pompe à chaleur, VMC double flux et conduit d’extraction d’air

- Hauteur sous plafond entre 2,60 et 3,60 m

- Chauffage électrique, parquet

Entrée indépendante sur cour.

Etat des biens : état d'usage.

Les biens s'inscrivent dans un immeuble en pierre de taille, principalement constitué d'un bâtiment sur rue et cour.

A destination mixte, de bureaux et résidentiel, l'immeuble est détenu en copropriété.

Ses façades pierres de taille sont en bon état de ravalement, ses parties communes de bon standing.

Les prestations générales de cet immeuble regroupent hall, ascenseurs, interphone, digicode, gardien et accès sécurisés.

Les informations sur les risques auxquels ce bien est exposé sont disponibles sur le site Géorisques : www.georisques.gouv.fr.

Tableau de surfaces

Niveau Type Surface Prix* Charges**
Rez de chaussée BUREAUX 56 m² NC NC
Sous-sol LOC. POLYVALENTS 187 m² NC 35 €

*Prix exprimé en €/m²
**Charges exprimées en € HT/m²/an

Conditions financières et juridiques

9 013 € / m²

Plus faible valeur du marché

8 462 € / m²

Plus forte valeur du marché

38 000 € / m²
  • Prix net vendeur

    2 190 000 €

  • Charges annuelles

    8 505 €

  • Impôt foncier

    En cours de validation

  • Taxe sur les bureaux

    En cours de validation

  • Consommation énergétique

    En cours

  • Gaz à effet de serre

    En cours

  • Surfaces et affectations en cours de validation
  • Cession de l'actif libre de location ou d'occupation.
  • Vente de gré à gré.
  • Cession soumise aux droits d'enregistrement.
  • Le prix de vente s'exprime NET VENDEUR. L'assiette utilisée pour le calcul les droits de mutation n'inclut pas les honoraires hors TVA à la charge de l'acquéreur.

PARTAGER

Valérie AKNIN

Valérie AKNIN

Nous appeler
Selectionner cette offre Imprimer cette offre Partager cette offre par email
Réf. 3808

Les offres similaires