Transport en commun Ternes

Des bureaux à vendre à PARIS 08 (75008), métro Ternes, 165 m² de bureaux dans un immeuble ancien.

Ternes

165 m² non-divisibles

3 811 549 €
23 101 €/m²


Immeuble, prestations et services

Climatisation Espaces ouverts Espace extérieur ERP/PMR Gardien Standing

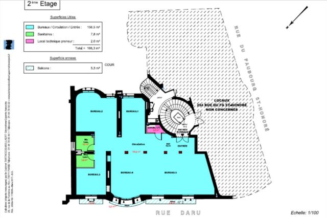
Au 2ème étage, 165 m² de bureaux spacieux et lumineux, répartis en espaces ouverts et cloisonnés.

Belle hauteur sous plafond.

Moquette, faux-plafonds, fenêtres aluminium double vitrage avec rupture de ponts thermiques.

Câblage informatique, faux plancher.

Chauffage individuel électrique et climatisation climespace.

Distribution par UI gainable de type VRV 3 tubes.

Production d'ECS: ballons d'eau chaude électriques.

Eclairage LED.

Balcon.

Etat des biens : très bon état.

Les biens s'inscrivent dans un immeuble de type Art Déco, principalement constitué d'un bâtiment sur rue et cour.

A destination mixte, de bureaux et résidentiel, l'immeuble est détenu en copropriété.

Ses façades modernes sont en bon état de ravalement, et ses parties communes de bon standing.

Ses prestations générales regroupent ascenseurs, interphone, digicode, gardien et accès sécurisés.

Les informations sur les risques auxquels ce bien est exposé sont disponibles sur le site Géorisques : www.georisques.gouv.fr.

Tableau de surfaces

Niveau Type Surface Prix* Charges**
Etage BUREAUX 165 m² NC NC
Sous-sol ARCHIVES 45 m² NC NC

*Prix exprimé en €/m²
**Charges exprimées en € HT/m²/an

Conditions financières et juridiques

23 101 € / m²

Plus faible valeur du marché

8 462 € / m²

Plus forte valeur du marché

38 000 € / m²
  • Prix net vendeur

    3 811 549 €

  • Charges annuelles

    En cours de validation

  • Impôt foncier

    En cours de validation

  • Taxe sur les bureaux

    En cours de validation

  • Consommation énergétique

    En cours

  • Gaz à effet de serre

    En cours

  • Surfaces et affectations en cours de validation
  • Cession de l'actif libre de location ou d'occupation.
  • Vente de gré à gré.
  • Cession soumise aux droits d'enregistrement.
  • Le prix de vente s'exprime NET VENDEUR. L'assiette utilisée pour le calcul les droits de mutation n'inclut pas les honoraires hors TVA à la charge de l'acquéreur.

PARTAGER

Valérie AKNIN

Valérie AKNIN

Nous appeler
Selectionner cette offre Imprimer cette offre Partager cette offre par email
Réf. 6406

Les offres similaires