Transport en commun Miromesnil

Des bureaux à vendre à PARIS 08 (75008), métro Miromesnil, 392 m² de bureaux dans un immeuble haussmannien.

Miromesnil

392 m² non-divisibles

7 100 000 €
18 113 €/m²


Immeuble, prestations et services

Salle de réunion Parking Immeuble Haussmannien Standing

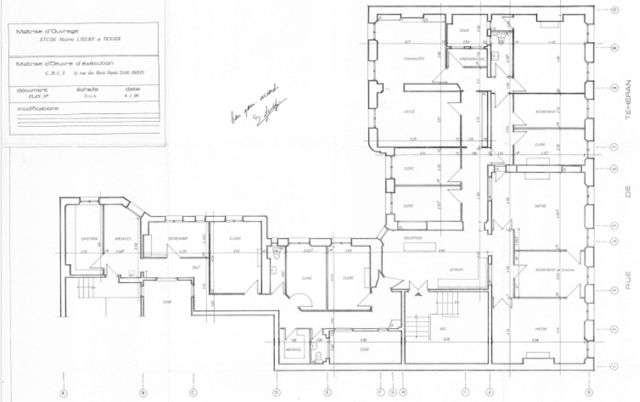
Au 3ème étage, 339 m² de bureaux traversants, répartis en une entrée, plusieurs bureaux décloisonnables, 3 sanitaires privatifs.

Hauteur sous plafond : 3,47 mètres.

Parquet point de Hongrie, moulures, cheminées.

Câblage informatique et prises RJ45.

Le rez-de-chaussée est relié au sous-sol : belle salle de réunion de 27 m², beau local archive de 27 m².

3 sanitaires privatifs, une cave.

Une sortie de secours.

Etat des biens : très bon état général.

Les biens s'inscrivent dans un immeuble haussmannien édifié dans les années 1880, en R+6 sur sous-sol, principalement constitué d'un bâtiment sur rue, sur la parcelle cadastrale CL 58 d’une contenance de 718 m²

A destination mixte, bureaux et résidentiel, l'immeuble est détenu en copropriété.

Ses façades pierres de taille sont en bon état de ravalement, ses parties communes de bon standing.

Ses prestations générales regroupent ascenseur, digicode, vidéosurveillance et accès sécurisés.

Les informations sur les risques auxquels ce bien est exposé sont disponibles sur le site Géorisques : www.georisques.gouv.fr.

Tableau de surfaces

Niveau Type Surface Prix* Charges**
Rez de chaussée S. REUNION 26 m² NC NC
Etage BUREAUX 339 m² NC NC
Sous-sol ARCHIVES 27 m² NC NC

*Prix exprimé en €/m²
**Charges exprimées en € HT/m²/an

Parking Nombre Prix /unité
Extérieur 1 0 €

Conditions financières et juridiques

18 113 € / m²

Plus faible valeur du marché

8 462 € / m²

Plus forte valeur du marché

38 000 € / m²
  • Prix net vendeur

    7 100 000 €

  • Charges annuelles

    10 936 €

  • Impôt foncier

    5079 €

  • Taxe sur les bureaux

    24,69 €

  • Consommation énergétique

    En cours

  • Gaz à effet de serre

    En cours

  • Surfaces et affectations en cours de validation
  • Cession de l'actif libre de location ou d'occupation.
  • Vente de gré à gré.
  • Cession soumise aux droits d'enregistrement.
  • Le prix de vente s'exprime NET VENDEUR. L'assiette utilisée pour le calcul les droits de mutation n'inclut pas les honoraires hors TVA à la charge de l'acquéreur.

PARTAGER

Valérie AKNIN

Valérie AKNIN

Nous appeler
Selectionner cette offre Imprimer cette offre Partager cette offre par email
Réf. 6309

Les offres similaires