Transport en commun Miromesnil

Des bureaux à vendre à PARIS 08 (75008), métro Miromesnil, 235 m² de bureaux dans un immeuble récent.

Miromesnil

235 m² non-divisibles

3 900 000 €
16 596 €/m²


Immeuble, prestations et services

Climatisation Parking Cuisine ERP/PMR Gardien Standing

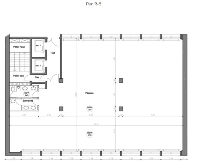
Au 5ème étage, 235 m² de bureaux traversants et très lumineux, répartis en open space.

Plan modulable sans contraintes porteuses.

Espace cuisine, 2 sanitaires privatifs.

Plateau fonctionnel et traversant, disposant de très peu de contraintes porteuses.

Moquette, faux-plafonds, doubles vitrages.

Câblage informatique, fibre optique.

Chauffage individuel électrique gaz fuel climatisation simple flux double flux aérothermes.

Etat des biens : bon état.

Les biens s'inscrivent dans un immeuble récent, édifié dans les années 90 en R+4 sur sous-sol, principalement constitué d'un bâtiment sur rue et cour, sur la parcelle cadastrale d'une contenance de m².

A destination mixte, exclusive de bureaux et résidentiel, l'immeuble est détenu en copropriété.

Ses façades modernes sont en bon état de ravalement, et ses parties communes de bon standing.

Ses prestations générales regroupent ascenseurs, ascenseur PMR, interphone, digicode, gardien et accès sécurisés 24h/24h.

Les informations sur les risques auxquels ce bien est exposé sont disponibles sur le site Géorisques : www.georisques.gouv.fr.

Tableau de surfaces

Niveau Type Surface Prix* Charges**
Etage BUREAUX 235 m² NC NC

*Prix exprimé en €/m²
**Charges exprimées en € HT/m²/an

Parking Nombre Prix /unité
Intérieur 7 40000 €

Conditions financières et juridiques

16 596 € / m²

Plus faible valeur du marché

8 462 € / m²

Plus forte valeur du marché

38 000 € / m²
  • Prix net vendeur

    3 900 000 €

  • Charges annuelles

    18 355 €

  • Impôt foncier

    En cours de validation

  • Taxe sur les bureaux

    En cours de validation

  • Consommation énergétique

    En cours

  • Gaz à effet de serre

    En cours

  • Surfaces et affectations en cours de validation
  • Cession de l'actif libre de location ou d'occupation.
  • Vente de gré à gré.
  • Cession soumise aux droits d'enregistrement.
  • Le prix de vente s'exprime NET VENDEUR. L'assiette utilisée pour le calcul les droits de mutation n'inclut pas les honoraires hors TVA à la charge de l'acquéreur.

PARTAGER

Valérie AKNIN

Valérie AKNIN

Nous appeler
Selectionner cette offre Imprimer cette offre Partager cette offre par email
Réf. 6289

Les offres similaires