Transport en commun MIROMESNIL

Des bureaux à vendre à PARIS 08 (75008), à proximité du Parc Monceau, métro Miromesnil, 1.017 m² de bureaux lumineux dans un immeuble ancien aux parties communes d’excellent standing.

MIROMESNIL

1017 m² divisibles à partir de 493 m²

Nous consulter
0 €/m²


Immeuble, prestations et services

Salle de réunion Espace extérieur ERP/PMR Rénovés Gardien Standing

Parquet moulures cheminées dans certains bureaux du 1er et du 2ème étage .

Climatisation réversible . Fibre Optique . Beaux volumes et belle hauteur sous plafond . Trappes techniques .

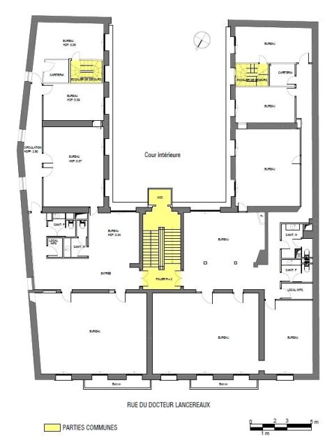
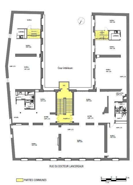
Bureaux haut de gamme avec vue sur cour végétalisée . 1er étage : 2 entrées palières ; possibilité 16 bureaux + 1 salle de réunion, 4 sanitaires + 1 kitchenette .

2ème étage : Balcon; possibilité 8 bureaux + 1 salle de réunion, 2 sanitaires + 1 kitchenette .

Flexibilité d’aménagement (open space / bureaux Cloisonnéss) . Faux plafond staff avec gorges lumineuses\t

Etat des biens : Rénové

Les biens s'inscrivent dans un immeuble ancien, principalement constitué d'un bâtiment sur rue et cour.

A destination mixte, de bureaux et résidentiel, l'immeuble est détenu en copropriété.

Ses façades pierres de taille sont en bon état de ravalement, ses parties communes de haut standing.

Ses prestations générales regroupent ascenseurs, interphone, digicode, gardien et accès sécurisés. Cour végétalisée

Les informations sur les risques auxquels ce bien est exposé sont disponibles sur le site Géorisques : www.georisques.gouv.fr.

Tableau de surfaces

Niveau Type Surface Prix* Charges**
Etage BUREAUX 230 m² NC NC
Rez de chaussée BUREAUX 64 m² NC NC
Etage BUREAUX 230 m² NC NC
Rez de chaussée BUREAUX 63 m² NC NC
Etage BUREAUX 230 m² NC NC
Etage BUREAUX 200 m² NC NC

*Prix exprimé en €/m²
**Charges exprimées en € HT/m²/an

Conditions financières et juridiques

0 € / m²

Plus faible valeur du marché

8 462 € / m²

Plus forte valeur du marché

38 000 € / m²
  • Prix net vendeur

    Nous consulter

  • Charges annuelles

    52 350 €

  • Impôt foncier

    60 €

  • Taxe sur les bureaux

    25,31 €

  • Consommation énergétique

    En cours

  • Gaz à effet de serre

    En cours

  • Surfaces et affectations en cours de validation
  • Cession de l'actif libre de location ou d'occupation.
  • Vente de gré à gré.
  • Cession soumise aux droits d'enregistrement.
  • Le prix de vente s'exprime NET VENDEUR. L'assiette utilisée pour le calcul les droits de mutation n'inclut pas les honoraires hors TVA à la charge de l'acquéreur.

PARTAGER

Valérie AKNIN

Valérie AKNIN

Nous appeler
Selectionner cette offre Imprimer cette offre Partager cette offre par email
Réf. 6149

Les offres similaires