Transport en commun Saint Placide

Des bureaux à vendre à PARIS 06 (75006), métro Saint Placide, 287 m² de bureaux dans un immeuble ancien.

Saint Placide

287 m² non-divisibles

7 700 000 €
26 830 €/m²


Immeuble, prestations et services

Salle de réunion Cuisine Espace extérieur

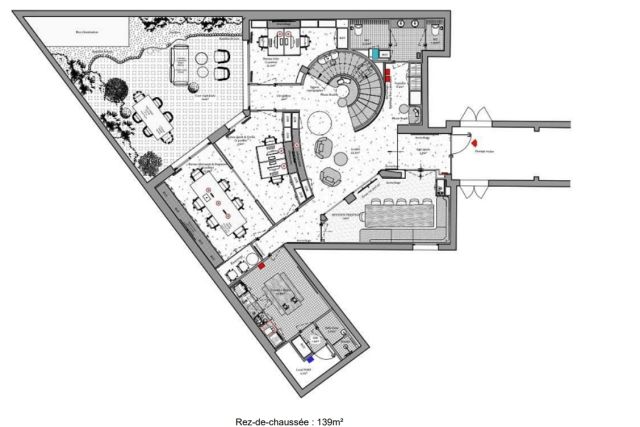
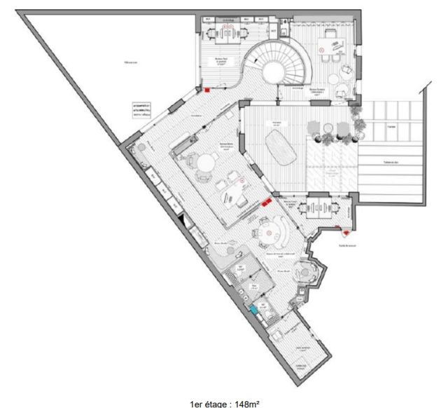
Au rez-de-chaussée et 1er étage, 287 m² de bureaux répartis en un hall d’accueil avec rangements et penderie, 6 bureaux indépendants dont 2 bureaux de direction, salle de réunion prestige, un open space pouvant être transformé en salle de réunion, 2 phone box, salle de réunion équipée, espaces de réunion informel, local d’archive, cuisine complète équipée et tisanerie à l’étage.

Parquet,.

Câblage informatique.

Etat des biens : remise à neuf a été dirigée par un architecte d'intérieur qui a opté pour des matériaux haut de gamme et des équipements de dernières génération, incluant des huisseries et des verrières contemporaines, des agencements sur-mesure en essence de bois rare, ainsi qu'un système de sécurité complet avec alarme et vidéosurveillance.

Cet immeuble bénéficie d'une luminosité exceptionnelle grâce à une exposition traversante est/ouest et de vastes verrières qui inondent les espaces intérieurs de lumière naturelle.

Un jardin extérieur de 65 m², conçu pour des moments de détente et des afterworks, ainsi qu'une terrasse ensoleillée d'environ 30 m² au premier étage offrent des espaces de vie en plein air unique à Paris et à l'abri de toute promiscuité avec le voisinnage.

Les informations sur les risques auxquels ce bien est exposé sont disponibles sur le site Géorisques : www.georisques.gouv.fr.

Tableau de surfaces

Niveau Type Surface Prix* Charges**
Rez de chaussée BUREAUX 139 m² NC NC
Etage BUREAUX 148 m² NC NC

*Prix exprimé en €/m²
**Charges exprimées en € HT/m²/an

Conditions financières et juridiques

26 830 € / m²

Plus faible valeur du marché

8 667 € / m²

Plus forte valeur du marché

26 830 € / m²
  • Prix net vendeur

    7 700 000 €

  • Charges annuelles

    En cours de validation

  • Impôt foncier

    En cours de validation

  • Taxe sur les bureaux

    En cours de validation

  • Consommation énergétique

    En cours

  • Gaz à effet de serre

    En cours

  • Surfaces et affectations en cours de validation
  • Cession de l'actif libre de location ou d'occupation.
  • Vente de gré à gré.
  • Cession soumise aux droits d'enregistrement.
  • Le prix de vente s'exprime NET VENDEUR. L'assiette utilisée pour le calcul les droits de mutation n'inclut pas les honoraires hors TVA à la charge de l'acquéreur.

PARTAGER

Valérie AKNIN

Valérie AKNIN

Nous appeler
Selectionner cette offre Imprimer cette offre Partager cette offre par email
Réf. 6287

Les offres similaires