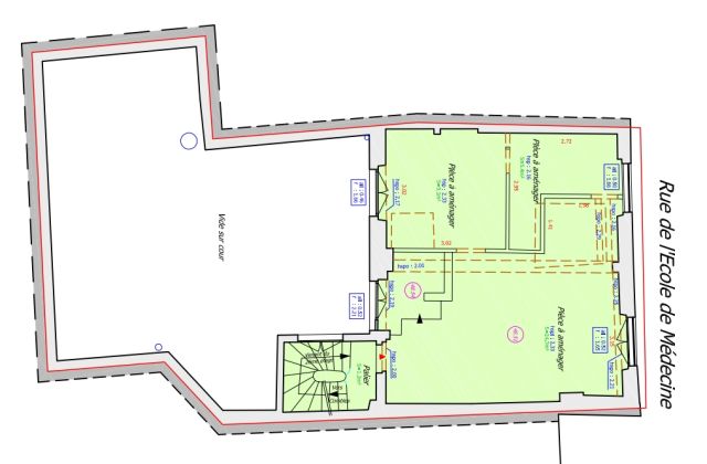
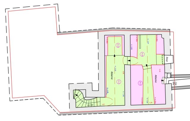
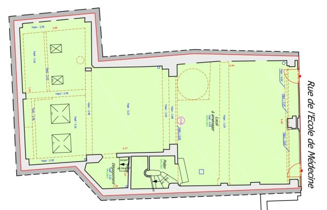
Un immeuble indépendant de locaux commerciaux à vendre à PARIS 06 (75006), métro "Cluny-La Sorbonne", 335 m² à rénover dans un immeuble indépendant du quartier Odéon.

ODEON

335 m² non-divisibles

4 700 000 €
14 030 €/m²



PARTAGER

Laurent MEIMOUN

Laurent MEIMOUN

Nous appeler
Selectionner cette offre Imprimer cette offre Partager cette offre par email
Réf. 5674

Les offres similaires