Transport en commun QUATRE SEPTEMBRE

Des bureaux à vendre à PARIS 02 (75002), métro Quatre Septembre, 296 m² de bureaux dans un immeuble ancien.

QUATRE SEPTEMBRE

296 m² non-divisibles

5 500 000 €
18 582 €/m²


Immeuble, prestations et services

Espaces ouverts ERP/PMR Rénovés Gardien Standing

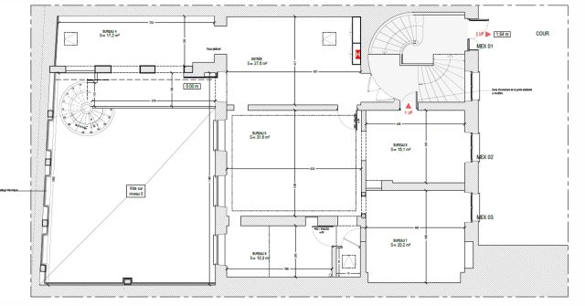
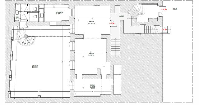
Au rez-de-chaussée et 1er étage, 296 m² de bureaux répartis en espaces ouverts et bureaux cloisonnés.

Belle hauteur sous-plafond.

Verrière de 7 mètres neuve.

Pierre apparente et charme de l'ancien.

Câblage.

Climatisation réversible.

Etat des biens : rénovés.

Les biens s'inscrivent dans un immeuble acien, principalement constitué d'un bâtiment sur rue et cour.

A destination mixte, de bureaux et résidentiel, l'immeuble est détenu en copropriété.

Ses façades pierres de taille sont entièrement rénovées, ses parties communes de bon standing.

Ses prestations générales regroupent ascenseurs, interphone, digicode, gardien et accès sécurisés.

Les informations sur les risques auxquels ce bien est exposé sont disponibles sur le site Géorisques : www.georisques.gouv.fr.

Tableau de surfaces

Niveau Type Surface Prix* Charges**
Rez de chaussée BUREAUX 148 m² NC NC
Etage BUREAUX 148 m² NC NC

*Prix exprimé en €/m²
**Charges exprimées en € HT/m²/an

Conditions financières et juridiques

18 582 € / m²

Plus faible valeur du marché

5 991 € / m²

Plus forte valeur du marché

20 645 € / m²
  • Prix net vendeur

    5 500 000 €

  • Charges annuelles

    En cours de validation

  • Impôt foncier

    25,31 €

  • Taxe sur les bureaux

    En cours de validation

  • Consommation énergétique

    En cours

  • Gaz à effet de serre

    En cours

  • Surfaces et affectations en cours de validation
  • Cession de l'actif libre de location ou d'occupation.
  • Vente de gré à gré.
  • Cession soumise aux droits d'enregistrement.
  • Le prix de vente s'exprime NET VENDEUR. L'assiette utilisée pour le calcul les droits de mutation n'inclut pas les honoraires hors TVA à la charge de l'acquéreur.

PARTAGER

Valérie AKNIN

Valérie AKNIN

Nous appeler
Selectionner cette offre Imprimer cette offre Partager cette offre par email
Réf. 6343

Les offres similaires