Des bureaux à vendre à PARIS 02 (75002), métro Bourse, 607 m² de bureaux dans un immeuble ancien.

Bourse

608 m² non-divisibles

8 000 000 €
13 158 €/m²


Immeuble, prestations et services

Espaces ouverts ERP/PMR Gardien Standing

Au rez-de-chaussée, mezzanine et sous-sol, une surface atypique et indépendante de 607 m², répartis en espaces ouverts bénéficiant de volumes exceptionnels.

Accès privatif.

Norme ERP, accès PMR.

Cour intérieure.

Faux-plafonds, éclairage par spots, doubles vitrages.

Câblage informatique.

Climatisation.

Etat des biens : parfait état.

Les biens s'inscrivent dans un immeuble de bon standing, principalement constitué d'un bâtiment sur rue et cour.

A destination mixte, de bureaux et résidentiel, l'immeuble est détenu en copropriété.

Ses façades modernes sont en bon état de ravalement, et ses parties communes de bon standing.

Ses prestations générales regroupent ascenseurs, interphone, digicode, gardien et accès sécurisés.

Les informations sur les risques auxquels ce bien est exposé sont disponibles sur le site Géorisques : www.georisques.gouv.fr.

Tableau de surfaces

Niveau Type Surface Prix* Charges**
Mezzanine BUREAUX 13 m² NC NC
Rez de chaussée BUREAUX 506 m² NC NC
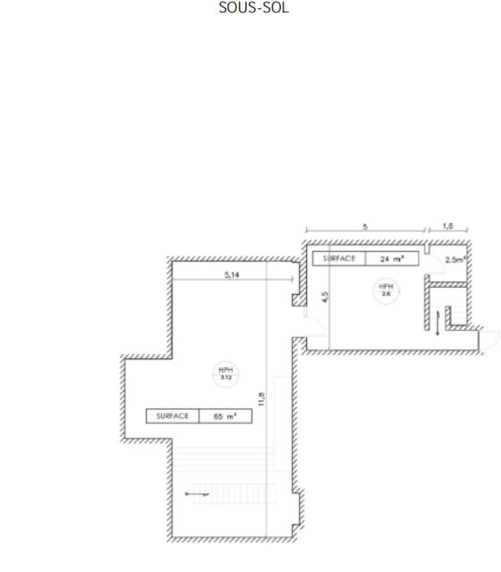
Sous-sol BUREAUX 89 m² NC NC

*Prix exprimé en €/m²
**Charges exprimées en € HT/m²/an

Conditions financières et juridiques

13 158 € / m²

Plus faible valeur du marché

5 991 € / m²

Plus forte valeur du marché

20 645 € / m²
  • Prix net vendeur

    8 000 000 €

  • Charges annuelles

    12 000 €

  • Impôt foncier

    En cours de validation

  • Taxe sur les bureaux

    En cours de validation

  • Consommation énergétique

    En cours

  • Gaz à effet de serre

    En cours

  • Surfaces et affectations en cours de validation
  • Cession de l'actif libre de location ou d'occupation.
  • Vente de gré à gré.
  • Cession soumise aux droits d'enregistrement.
  • Le prix de vente s'exprime NET VENDEUR. L'assiette utilisée pour le calcul les droits de mutation n'inclut pas les honoraires hors TVA à la charge de l'acquéreur.

PARTAGER

Valérie AKNIN

Valérie AKNIN

Nous appeler
Selectionner cette offre Imprimer cette offre Partager cette offre par email
Réf. 6306

Les offres similaires