Transport en commun Réaumur Sébastopol

Des bureaux à vendre à PARIS 02 (75), dans le quartier Montorgueil-Sentier, métro Réaumur Sébastopol, 420 m² de bureaux divisibles à partir de 329 m² dans un immeuble ancien.

Réaumur Sébastopol

420 m² divisibles à partir de 329 m²

6 800 000 €
16 191 €/m²


Immeuble, prestations et services

Espaces ouverts ERP/PMR Rénovés Gardien Standing

Au rez-de-chaussée, 1er étage et sous-sol, 420 m² de bureaux répartis en espaces ouverts.

Cette surface bénéficie d'une entrée principale ainsi qu'une entrée secondaire PMR au 183 rue Saint-Denis.

Beaux volumes lumineux au au rez-de-chaussée, hauteur sous plafond : 3,15 m, 2.30 m au 1er étage.

Pierres et poutres apparentes, parquet, doubles vitrages.

Chauffage individuel électrique.

Etat des biens : rénovés.

Les biens s'inscrivent dans un immeuble ancien édifié en R+6 sur sous-sol, principalement constitué d'un bâtiment sur rue et cour, sur la parcelle cadastrale AM 176 d'une contenance de 335 m².

A destination mixte, de bureaux et résidentiel, l'immeuble est détenu en copropriété.

Ses façades pierres de Paris sont en bon état de ravalement, ses parties communes de bon standing.

Ses prestations générales regroupent ascenseurs, interphone, digicode, gardien et accès sécurisés.

Les informations sur les risques auxquels ce bien est exposé sont disponibles sur le site Géorisques : www.georisques.gouv.fr.

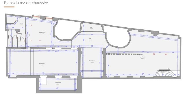
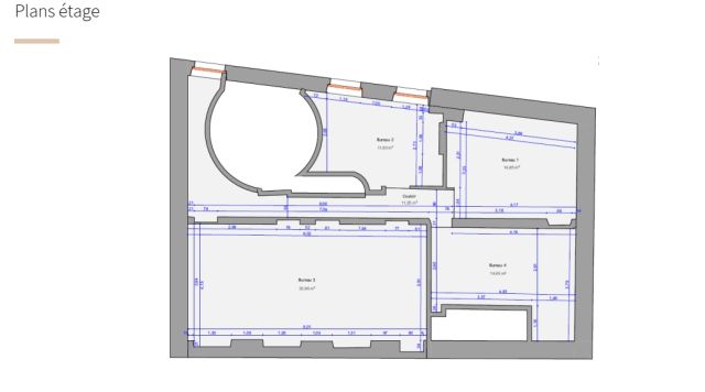
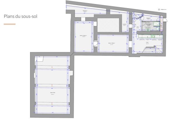
Tableau de surfaces

Niveau Type Surface Prix* Charges**
Rez de chaussée BUREAUX 258 m² NC NC
Etage BUREAUX 91 m² NC NC
Sous-sol BUREAUX 71 m² NC NC

*Prix exprimé en €/m²
**Charges exprimées en € HT/m²/an

Conditions financières et juridiques

16 191 € / m²

Plus faible valeur du marché

5 991 € / m²

Plus forte valeur du marché

20 645 € / m²
  • Prix net vendeur

    6 800 000 €

  • Charges annuelles

    7 400 €

  • Impôt foncier

    En cours de validation

  • Taxe sur les bureaux

    En cours de validation

  • Consommation énergétique

    En cours

  • Gaz à effet de serre

    En cours

  • Surfaces et affectations en cours de validation
  • Cession de l'actif libre de location ou d'occupation.
  • Vente de gré à gré.
  • Cession soumise aux droits d'enregistrement.
  • Le prix de vente s'exprime NET VENDEUR. L'assiette utilisée pour le calcul les droits de mutation n'inclut pas les honoraires hors TVA à la charge de l'acquéreur.

PARTAGER

Valérie AKNIN

Valérie AKNIN

Nous appeler
Selectionner cette offre Imprimer cette offre Partager cette offre par email
Réf. 6132

Les offres similaires