Des bureaux à vendre à PARIS 02 (75002), métro Sentier, 172 m² de bureaux dans un immeuble ancien.

Sentier

172 m² non-divisibles

1 900 000 €
11 047 €/m²


Immeuble, prestations et services

ERP/PMR Gardien Standing

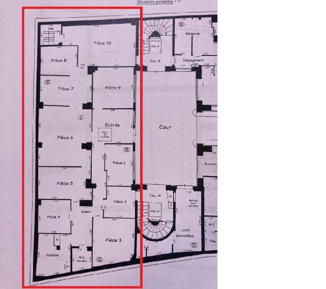
Au rez-de-chaussée, 172 m² de bureaux répartis en en 1 espace ouvert et 2 salles de réunion.

Belle hauteur sous plafond.

Faux-plafonds, doubles vitrages.

Câblage informatique.

Etat des biens : excellent état.

Les biens s'inscrivent dans un immeuble ancien, principalement constitué d'un bâtiment sur rue et cour.

A destination mixte, bureaux et résidentiel, ses façades modernes sont en bon état de ravalement.

Ses parties communes sont de bon standing.

Ses prestations générales regroupent ascenseurs, interphone, digicode, gardien, accès sécurisés.

Tableau de surfaces

Niveau Type Surface Prix* Charges**
Rez de chaussée BUREAUX 172 m² NC NC

*Prix exprimé en €/m²
**Charges exprimées en € HT/m²/an

Conditions financières et juridiques

11 047 € / m²

Plus faible valeur du marché

5 991 € / m²

Plus forte valeur du marché

20 645 € / m²
  • Prix net vendeur

    1 900 000 €

  • Charges annuelles

    En cours de validation

  • Impôt foncier

    15,15 €

  • Taxe sur les bureaux

    23,67 €

  • Consommation énergétique

    En cours

  • Gaz à effet de serre

    En cours

  • Surfaces et affectations en cours de validation
  • Cession de l'actif libre de location ou d'occupation.
  • Vente de gré à gré.
  • Cession soumise aux droits d'enregistrement.
  • Le prix de vente s'exprime NET VENDEUR. L'assiette utilisée pour le calcul les droits de mutation n'inclut pas les honoraires hors TVA à la charge de l'acquéreur.

PARTAGER

Valérie AKNIN

Valérie AKNIN

Nous appeler
Selectionner cette offre Imprimer cette offre Partager cette offre par email
Réf. 5643

Les offres similaires