Transport en commun Anatole France

Des bureaux à vendre à LEVALLOIS PERRET (92300), métro Anatole France, 756 m² de bureaux dans un immeuble récent.

Anatole France

756 m² non-divisibles

Nous consulter
0 €/m²


Immeuble, prestations et services

Espaces ouverts ERP/PMR Rénovés Gardien

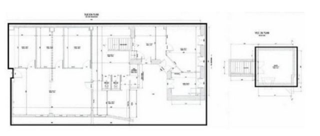
Au rez-de-chaussée, 756 m² de bureaux atypiques, répartis en espaces ouverts et cloisonnés.

Faux-plafonds, doubles vitrages.

Câblage informatique.

Climatisation.

Etat des biens : rénovés.

Les biens s'inscrivent dans un immeuble industriel, principalement constitué d'un bâtiment sur rue et cour.

A destination exclusive de bureaux, l'immeuble est détenu en pleine propriété.

Ses façades modernes sont en bon état de ravalement.

Ses prestations générales regroupent ascenseurs, interphone, digicode, gardien et accès sécurisés.

Les informations sur les risques auxquels ce bien est exposé sont disponibles sur le site Géorisques : www.georisques.gouv.fr.

Tableau de surfaces

Niveau Type Surface Prix* Charges**
Rez de chaussée BUREAUX 551 m² NC NC
Rez de chaussée BUREAUX 205 m² NC NC

*Prix exprimé en €/m²
**Charges exprimées en € HT/m²/an

Conditions financières et juridiques

0 € / m²

Plus faible valeur du marché

5 381 € / m²

Plus forte valeur du marché

11 775 € / m²
  • Prix net vendeur

    Nous consulter

  • Charges annuelles

    34 677 €

  • Impôt foncier

    22,49 €

  • Taxe sur les bureaux

    17,2 €

  • Consommation énergétique

    En cours

  • Gaz à effet de serre

    En cours

  • Surfaces et affectations en cours de validation
  • Cession de l'actif libre de location ou d'occupation.
  • Vente de gré à gré.
  • Cession soumise aux droits d'enregistrement.
  • Le prix de vente s'exprime NET VENDEUR. L'assiette utilisée pour le calcul les droits de mutation n'inclut pas les honoraires hors TVA à la charge de l'acquéreur.

PARTAGER

Valérie AKNIN

Valérie AKNIN

Nous appeler
Selectionner cette offre Imprimer cette offre Partager cette offre par email
Réf. 6417

Les offres similaires