Transport en commun Anatole France

Un immeuble indépendant de bureaux à vendre à LEVALLOIS-PERRET (92300), métro Anatole France, 1.098 m² utiles de bureaux dans un immeuble récent avec parkings.

Anatole France

1439 m² non-divisibles

Nous consulter
0 €/m²


Immeuble, prestations et services

Parking Immeuble indépendant Espace extérieur ERP/PMR

***INVESTISSEMENT***

--------------------------------------

Surface louée à HGE : 1 147 m2 SDP + espaces extérieurs

Surface sous-sol disponible : 290 m2

Destination : bureaux

Détention : pleine propriété

Capacitaire : 200 personnes

ERP (Etablissement recevant du public) : Catégorie 4 Type R

Conforme au décret tertiaire

Les biens s'inscrivent dans un Immeuble indépendant de bureaux construit en 1988, détenu en pleine propriété.

S’y rattache un lot de copropriété (n° 24) consistant en un droit de passage détenu dans la copropriété voisine sise 97, rue Danton permettant l’accès au parking situé sous l’immeuble de bureau.

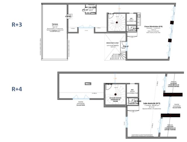
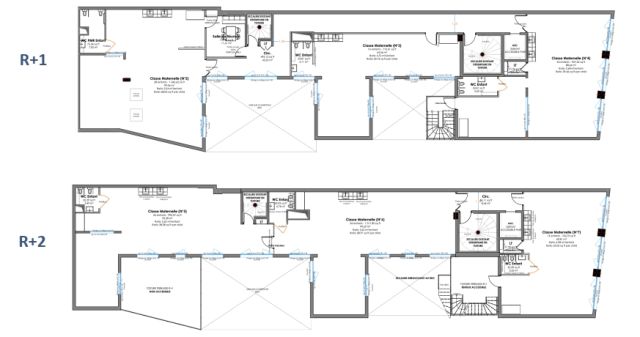
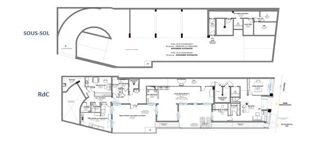
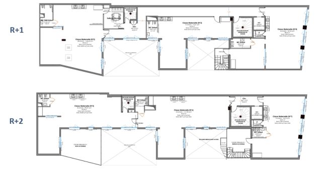
Édifié en R+4 sur sous-sol, l’immeuble développe une surface utile hors sous-sol de 1. 097,40 m² et dispose de 10 places de parking.

De forme rectangulaire, il offre des plateaux composés d’un grand open-space en façade sur rue, suivi par des espaces de travail cloisonnés ou ouverts.

Ces bureaux bénéficient d’une bonne luminosité naturelle grâce à leur exposition sur des courettes intérieures et les différentes terrasses successives de l

Les informations sur les risques auxquels ce bien est exposé sont disponibles sur le site Géorisques : www.georisques.gouv.fr.

Tableau de surfaces

Niveau Type Surface Prix* Charges**
Etage BUREAUX 85 m² NC NC
Etage BUREAUX 119 m² NC NC
Etage BUREAUX 286 m² NC NC
Etage BUREAUX 338 m² NC NC
Rez de chaussée BUREAUX 270 m² NC NC
Sous-sol LOCAUX TECHNIQUES 341 m² NC NC

*Prix exprimé en €/m²
**Charges exprimées en € HT/m²/an

Parking Nombre Prix /unité
Intérieur 10 0 €

Conditions financières et juridiques

0 € / m²

Plus faible valeur du marché

5 381 € / m²

Plus forte valeur du marché

11 775 € / m²
  • Prix net vendeur

    Nous consulter

  • Charges annuelles

    En cours de validation

  • Impôt foncier

    En cours de validation

  • Taxe sur les bureaux

    En cours de validation

  • Consommation énergétique

    En cours

  • Gaz à effet de serre

    En cours

  • Surfaces et affectations en cours de validation
  • Cession de l'actif libre de location ou d'occupation.
  • Vente de gré à gré.
  • Cession soumise aux droits d'enregistrement.
  • Le prix de vente s'exprime NET VENDEUR. L'assiette utilisée pour le calcul les droits de mutation n'inclut pas les honoraires hors TVA à la charge de l'acquéreur.

PARTAGER

Laurent MEIMOUN

Laurent MEIMOUN

Nous appeler
Selectionner cette offre Imprimer cette offre Partager cette offre par email
Réf. 6213

Les offres similaires