Transport en commun Louise Michel

Des bureaux à vendre à LEVALLOIS PERRET (92400), métro Louise Michel, 720 m² de bureaux dans un immeuble récent.

Louise Michel

721 m² non-divisibles

6 725 000 €
9 328 €/m²


Immeuble, prestations et services

Espaces ouverts ERP/PMR Gardien Standing

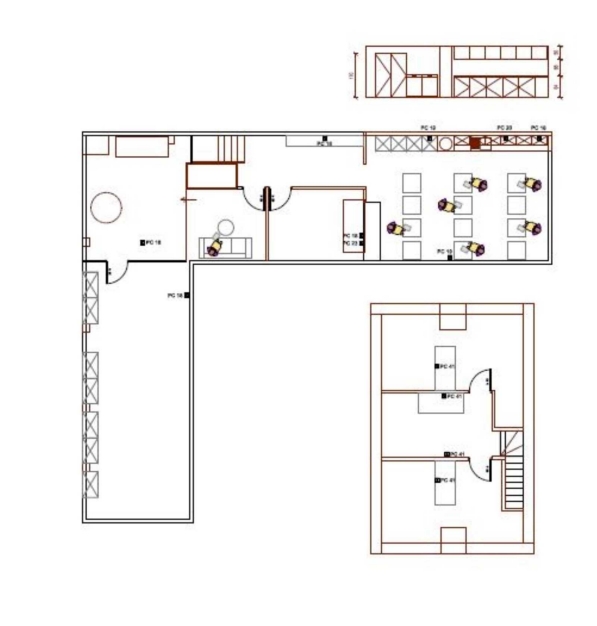
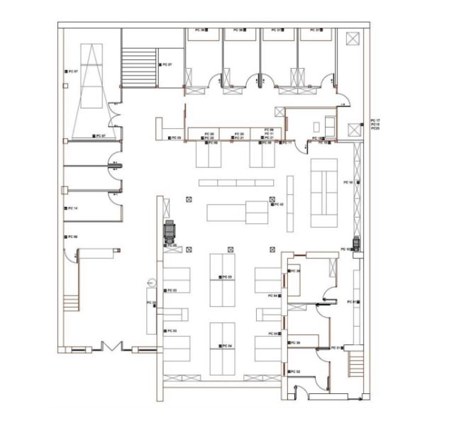
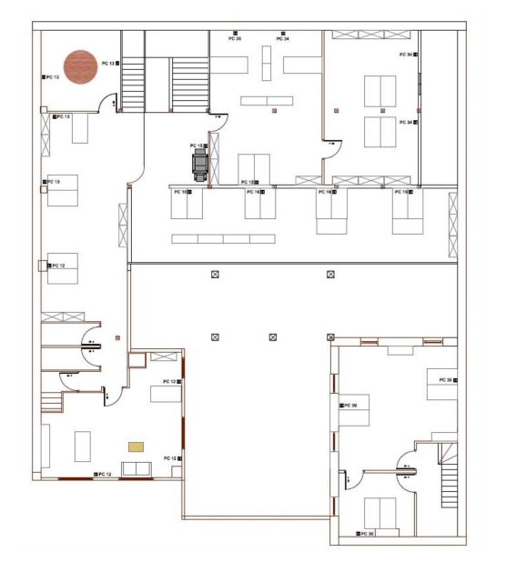
En R+2, 720 m² de bureaux atypiques dans un esprit loft, répartis en espaces ouverts et cloisonnés.

Beau volume et belle luminuosité.

Câblage informatique.

Climatisation.

Etat des biens : bon état.

Les biens s'inscrivent dans un immeuble principalement constitué d'un bâtiment sur rue et cour.

A destination mixte, de bureaux et résidentiel, l'immeuble est détenu en copropriété.

Ses façades modernes sont en bon état de ravalement, et ses parties communes de bon standing.

Ses prestations générales regroupent ascenseurs, interphone, digicode, gardien et accès sécurisés.

Les informations sur les risques auxquels ce bien est exposé sont disponibles sur le site Géorisques : www.georisques.gouv.fr.

Tableau de surfaces

Niveau Type Surface Prix* Charges**
Etage BUREAUX 87 m² NC NC
Etage BUREAUX 231 m² NC NC
Rez de chaussée BUREAUX 403 m² NC NC

*Prix exprimé en €/m²
**Charges exprimées en € HT/m²/an

Conditions financières et juridiques

9 328 € / m²

Plus faible valeur du marché

5 381 € / m²

Plus forte valeur du marché

11 775 € / m²
  • Prix net vendeur

    6 725 000 €

  • Charges annuelles

    21 262 €

  • Impôt foncier

    34,79 €

  • Taxe sur les bureaux

    10,07 €

  • Consommation énergétique

    En cours

  • Gaz à effet de serre

    En cours

  • Surfaces et affectations en cours de validation
  • Cession de l'actif libre de location ou d'occupation.
  • Vente de gré à gré.
  • Cession soumise aux droits d'enregistrement.
  • Le prix de vente s'exprime NET VENDEUR. L'assiette utilisée pour le calcul les droits de mutation n'inclut pas les honoraires hors TVA à la charge de l'acquéreur.

PARTAGER

Valérie AKNIN

Valérie AKNIN

Nous appeler
Selectionner cette offre Imprimer cette offre Partager cette offre par email
Réf. 6273

Les offres similaires