Transport en commun Anatole France

Des bureaux à vendre à LEVALLOIS PERRET (92300), métro Anatole France, 222 m² de bureaux dans un immeuble récent.

Anatole France

222 m² non-divisibles

Nous consulter
0 €/m²


Immeuble, prestations et services

Espaces ouverts Espace extérieur ERP/PMR Rénovés Gardien Standing

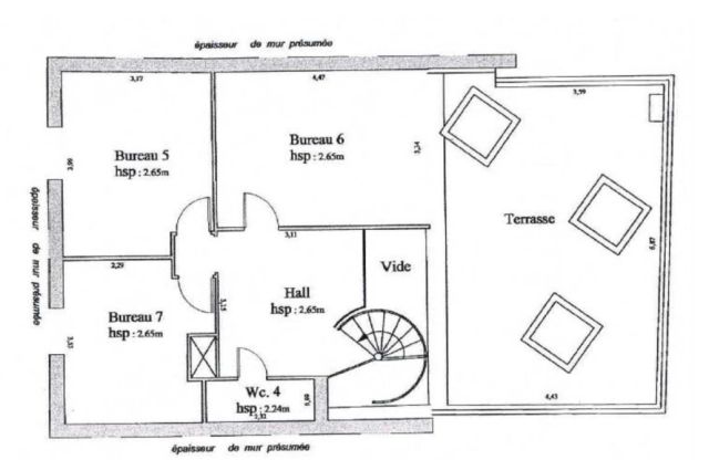
En R+1, 222 m² de bureaux répartis en bureaux cloisonnés et espaces ouverts.

Belle hauteur sous plafond.

Parquet, faux-plafonds, doubles vitrages.

Câblage informatique.

Climatisation réversible.

Verrière, grande terrasse.

Etat des biens : récemment rénovés.

Les biens s'inscrivent dans un immeuble récent, principalement constitué d'un bâtiment sur rue et cour.

A destination exclusive de bureaux, l'immeuble est détenu en copropriété.

Ses façades modernes sont en bon état de ravalement, et ses parties communes de bon standing.

Ses prestations générales regroupent ascenseurs, interphone, digicode, gardien et accès sécurisés.

Les informations sur les risques auxquels ce bien est exposé sont disponibles sur le site Géorisques : www.georisques.gouv.fr.

Tableau de surfaces

Niveau Type Surface Prix* Charges**
Etage TERRASSES 35 m² NC NC
Etage BUREAUX 50 m² NC NC
Rez de chaussée BUREAUX 89 m² NC NC
Sous-sol BUREAUX 48 m² NC NC

*Prix exprimé en €/m²
**Charges exprimées en € HT/m²/an

Conditions financières et juridiques

0 € / m²

Plus faible valeur du marché

5 381 € / m²

Plus forte valeur du marché

11 775 € / m²
  • Prix net vendeur

    Nous consulter

  • Charges annuelles

    En cours de validation

  • Impôt foncier

    En cours de validation

  • Taxe sur les bureaux

    En cours de validation

  • Consommation énergétique

    En cours

  • Gaz à effet de serre

    En cours

  • Surfaces et affectations en cours de validation
  • Cession de l'actif libre de location ou d'occupation.
  • Vente de gré à gré.
  • Cession soumise aux droits d'enregistrement.
  • Le prix de vente s'exprime NET VENDEUR. L'assiette utilisée pour le calcul les droits de mutation n'inclut pas les honoraires hors TVA à la charge de l'acquéreur.

PARTAGER

Valérie AKNIN

Valérie AKNIN

Nous appeler
Selectionner cette offre Imprimer cette offre Partager cette offre par email
Réf. 6235

Les offres similaires