Transport en commun Saint Mandé

Des bureaux à vendre à SAINT MANDE (94160), métro Saint Mandé, 321,33 m² de bureaux dans un immeuble ancien.

Saint Mandé

321 m² non-divisibles

1 900 000 €
5 920 €/m²


Immeuble, prestations et services

Espaces ouverts Parking ERP/PMR Gardien Standing

Au rez-de-chaussée et 1er étage, 321,33 m² de bureaux répartis en espaces ouverts et cloisonnés.

Peu de contraintes porteuses.

Moquette, faux-plafonds, doubles vitrages.

Câblage informatique.

Chauffage individuel au gaz.

Verrière.

Etat des biens : à rénover.

Les biens s'inscrivent dans une ancienne imprimerie du début du 20° siècle principalement constitué d'un bâtiment sur rue et cour.

A destination mixte, de bureaux et résidentiel, l'immeuble est détenu en copropriété.

Ses façades modernes sont en bon état de ravalement, et ses parties communes de bon standing.

Ses prestations générales regroupent ascenseurs, interphone, digicode, gardien et accès sécurisés.

Les informations sur les risques auxquels ce bien est exposé sont disponibles sur le site Géorisques : www.georisques.gouv.fr.

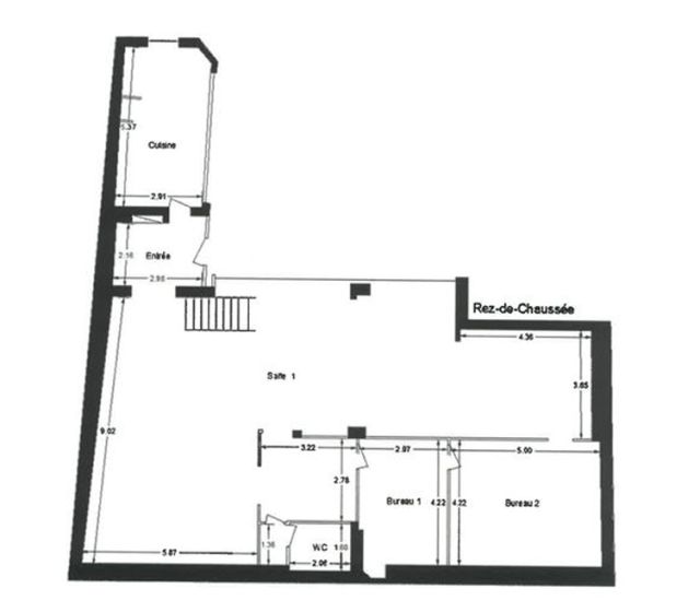
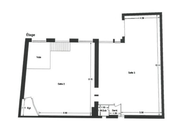
Tableau de surfaces

Niveau Type Surface Prix* Charges**
Rez de chaussée BUREAUX 168 m² NC NC
Etage BUREAUX 153 m² NC NC

*Prix exprimé en €/m²
**Charges exprimées en € HT/m²/an

Parking Nombre Prix /unité
Extérieur 2 0 €

Conditions financières et juridiques

5 920 € / m²

Plus faible valeur du marché

5 920 € / m²

Plus forte valeur du marché

6 500 € / m²
  • Prix net vendeur

    1 900 000 €

  • Charges annuelles

    8 859 €

  • Impôt foncier

    35,4 €

  • Taxe sur les bureaux

    11,66 €

  • Consommation énergétique

    En cours

  • Gaz à effet de serre

    En cours

  • Surfaces et affectations en cours de validation
  • Cession de l'actif libre de location ou d'occupation.
  • Vente de gré à gré.
  • Cession soumise aux droits d'enregistrement.
  • Le prix de vente s'exprime NET VENDEUR. L'assiette utilisée pour le calcul les droits de mutation n'inclut pas les honoraires hors TVA à la charge de l'acquéreur.

PARTAGER

Valérie AKNIN

Valérie AKNIN

Nous appeler
Selectionner cette offre Imprimer cette offre Partager cette offre par email
Réf. 6474