Transport en commun PELLEPORT BIS

Un immeunle indépendant de bureaux à vendre à PARIS 20 (75020), métro PELLEPORT, 295 m² de bureaux rénovés et climatisés, offrAnt des espaces ouverts, salle de réunion et cuisine, avec accessibilité PMR.

PELLEPORT BIS

295 m² non-divisibles

2 700 000 €
9 153 €/m²


Immeuble, prestations et services

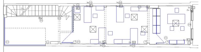
Espaces ouverts Salle de réunion Cuisine ERP/PMR Rénovés Standing

• Surface de bureaux en pleine propriété de style industriel entièrement rénovés et dôtés d'une très belle luminosité

• Locaux majoritairement aménagés en espace ouvert - trois salles de réunions

• Bel espace cuisine / coin détente en sous-sol

• Belle hauteur-sous-plafond

• Climatisation réversible

• Câblage informatique

• Verrière au 1er étage

• Sol PVC - moquette

• Accès PMR - accès indépendant depuis la rue

Les biens s'inscrivent dans un immeuble récent, édifié dans les années 90 en R+3 sur sous-sol, principalement constitué d'un bâtiment sur rue et cour.

A destination exclusive de bureaux, l'immeuble est détenu en monopropriété.

Ses façades modernes sont en bon état de ravalement, et ses parties communes de bon standing.

Les informations sur les risques auxquels ce bien est exposé sont disponibles sur l

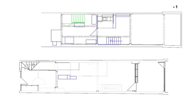
Tableau de surfaces

Niveau Type Surface Prix* Charges**
Sous-sol LOC. POLYVALENTS 55 m² NC NC
Rez de chaussée BUREAUX 64 m² NC NC
Etage BUREAUX 62 m² NC NC
Etage BUREAUX 56 m² NC NC
Etage BUREAUX 58 m² NC NC

*Prix exprimé en €/m²
**Charges exprimées en € HT/m²/an

Conditions financières et juridiques

9 153 € / m²

Plus faible valeur du marché

5 491 € / m²

Plus forte valeur du marché

9 153 € / m²
  • Prix net vendeur

    2 700 000 €

  • Charges annuelles

    En cours de validation

  • Impôt foncier

    En cours de validation

  • Taxe sur les bureaux

    En cours de validation

  • Consommation énergétique

    En cours

  • Gaz à effet de serre

    En cours

  • Surfaces et affectations en cours de validation
  • Cession de l'actif libre de location ou d'occupation.
  • Vente de gré à gré.
  • Cession soumise aux droits d'enregistrement.
  • Le prix de vente s'exprime NET VENDEUR. L'assiette utilisée pour le calcul les droits de mutation n'inclut pas les honoraires hors TVA à la charge de l'acquéreur.

PARTAGER

Valérie AKNIN

Valérie AKNIN

Nous appeler
Selectionner cette offre Imprimer cette offre Partager cette offre par email
Réf. 6327

Les offres similaires