Transport en commun Philippe Auguste

Des bureaux à vendre à PARIS 20 (75020), métro Philippe Auguste, 1 141 m² de bureaux divisibles à partir de 502 m² dans un immeuble indépendant.

Philippe Auguste

1141 m² divisibles à partir de 502 m²

8 500 000 €
7 450 €/m²


Immeuble, prestations et services

Espaces ouverts Immeuble indépendant Espace extérieur ERP/PMR Rénovés Gardien Standing

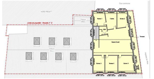
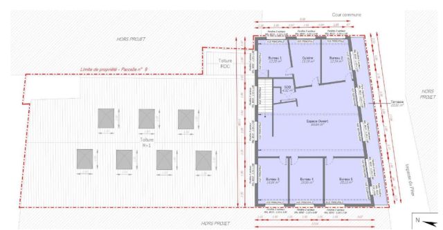
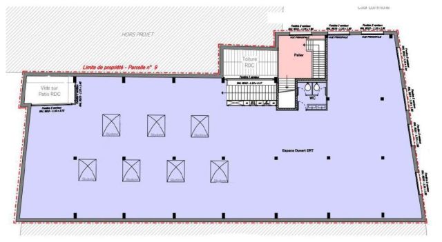
En R+2, 1 141 m² de bureaux, en fond de cour, répartis en espaces ouverts et cloisonnés.

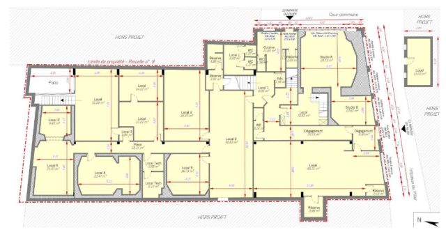
Locaux ERPable

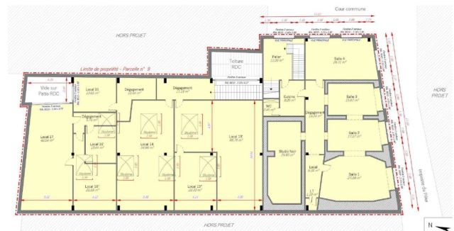
Locaux curés.

Arrière du bâtiment sous skydomes et fenêtres.

Espace libre de toute occupation et déjà curé.

Local commercial de 98 m² en RDC sur l’avant du bâtiment.

Terrasse de 21,82 m² au 2ème étage.

Etat des biens : rénovés.

Vente en l’état à 7,5 M € net vendeur OU clé en main à 8,5 M € net vendeur possible selon l’activité du futur occupant.

Les biens s'inscrivent dans un immeuble indépendant en fond de cour d'un ensemble

immobilier mixte résidentiel / commercial.

A destination mixte, exclusive de bureaux, l'immeuble est détenu en pleine propriété.

Ses façades modernes sont en bon état de ravalement, et ses parties communes de bon standing.

Ses prestations générales regroupent ascenseurs, interphone, digicode, gardien et accès sécurisés.

Les informations sur les risques auxquels ce bien est exposé sont disponibles sur le site Géorisques : www.georisques.gouv.fr.

Tableau de surfaces

Niveau Type Surface Prix* Charges**
Sous-sol BUREAUX 24 m² NC NC
Rez de chaussée BUREAUX 478 m² NC NC
Etage BUREAUX 456 m² NC NC
Etage BUREAUX 183 m² NC NC

*Prix exprimé en €/m²
**Charges exprimées en € HT/m²/an

Conditions financières et juridiques

7 450 € / m²

Plus faible valeur du marché

5 491 € / m²

Plus forte valeur du marché

9 153 € / m²
  • Prix net vendeur

    8 500 000 €

  • Charges annuelles

    En cours de validation

  • Impôt foncier

    En cours de validation

  • Taxe sur les bureaux

    En cours de validation

  • Consommation énergétique

    En cours

  • Gaz à effet de serre

    En cours

  • Surfaces et affectations en cours de validation
  • Cession de l'actif libre de location ou d'occupation.
  • Vente de gré à gré.
  • Cession soumise aux droits d'enregistrement.
  • Le prix de vente s'exprime NET VENDEUR. L'assiette utilisée pour le calcul les droits de mutation n'inclut pas les honoraires hors TVA à la charge de l'acquéreur.

PARTAGER

Valérie AKNIN

Valérie AKNIN

Nous appeler
Selectionner cette offre Imprimer cette offre Partager cette offre par email
Réf. 6232

Les offres similaires