Transport en commun MARAICHERS

Des bureaux à vendre à PARIS 20 (75020), métro Maraichers, 335 m² de bureaux divisibles à partir de 150 m² dans un atelier d'artiste entièrement rénové.

MARAICHERS

335 m² divisibles à partir de 150 m²

3 015 000 €
9 000 €/m²


Immeuble, prestations et services

Espaces ouverts ERP/PMR Rénovés Standing

Magnifique espace sous verrière traversant. Atelier d’artiste.

Accès PMR

Verrières. Grands espaces ouverts. Peu de contraintes porteuses. Courette

3 accès indépendants. Grande haueur sous plafond

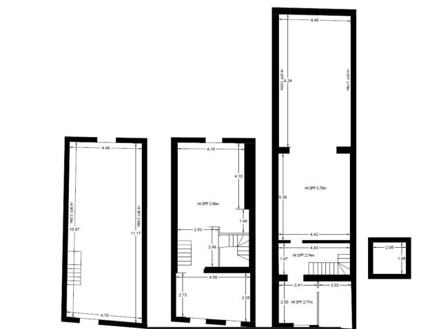
• 185 m² en un batiment indépendant R+1+2

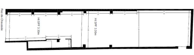
• 150 m² en rez-de-chaussée de type loft sous verriere

Etat des biens : rénové.

Les biens s'inscrivent dans un atelier d'artiste, principalement constitué d'un bâtiment sur rue et cour.

A destination de bureaux, l'immeuble est détenu en copropriété.

Ses façades sont en bon état de ravalement, ses parties communes de bon standing.

Les informations sur les risques auxquels ce bien est exposé sont disponibles sur le site Géorisques : www.georisques.gouv.fr.

Tableau de surfaces

Niveau Type Surface Prix* Charges**
Rez de chaussée BUREAUX 150 m² 9 000 € NC
Lot BUREAUX 185 m² 9 000 € NC

*Prix exprimé en €/m²
**Charges exprimées en € HT/m²/an

Conditions financières et juridiques

9 000 € / m²

Plus faible valeur du marché

5 491 € / m²

Plus forte valeur du marché

9 153 € / m²
  • Prix net vendeur

    3 015 000 €

  • Charges annuelles

    En cours de validation

  • Impôt foncier

    En cours de validation

  • Taxe sur les bureaux

    20,79 €

  • Consommation énergétique

    En cours

  • Gaz à effet de serre

    En cours

  • Surfaces et affectations en cours de validation
  • Cession de l'actif libre de location ou d'occupation.
  • Vente de gré à gré.
  • Cession soumise aux droits d'enregistrement.
  • Le prix de vente s'exprime NET VENDEUR. L'assiette utilisée pour le calcul les droits de mutation n'inclut pas les honoraires hors TVA à la charge de l'acquéreur.

PARTAGER

Valérie AKNIN

Valérie AKNIN

Nous appeler
Selectionner cette offre Imprimer cette offre Partager cette offre par email
Réf. 6131

Les offres similaires