Transport en commun Belleville

Des bureaux à vendre à PARIS 19 (75019), métro Belleville, 1 483 m² de bureaux dans un immeuble neuf.

Belleville

1435 m² non-divisibles

17 256 000 €
12 026 €/m²


Immeuble, prestations et services

ERP/PMR Gardien Standing

- Certification(s) environnementale(s) / Labels : NF HQE

- Bâtiment ERP 5 (200 personnes)

- Obtention du Permis de Construire : Juin 2020

- Début des travaux de démolition de l'atelier et des pavés sur la cour : février 2021

- Livraison du projet mars 2024

- La hauteur sous-dalle est variable :

. R-1 : 3,46 m

. Rdc : 2,90 m

. R+1 : 2,72 m

. R+2 : 2,65 m

ERP 5.

Etat des biens : neufs.

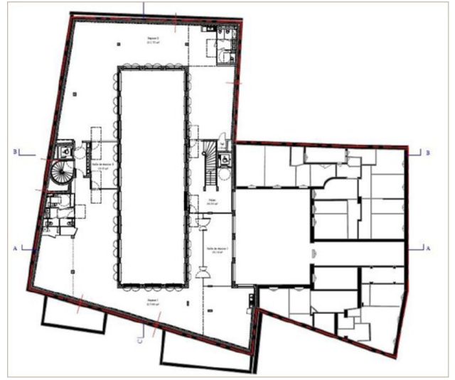
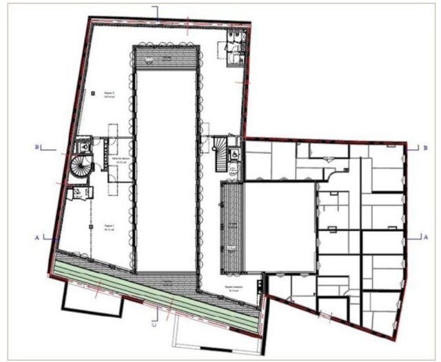
Les biens s'inscrivent dans un immeuble neuf, principalement constitué d'un bâtiment sur rue et cour.

A destination exclusive de bureaux, l'immeuble est détenu en pleine propriété.

Ses façades modernes sont en bon état de ravalement, et ses parties communes de bon standing.

Ses prestations générales regroupent ascenseurs, interphone, digicode, gardien et accès sécurisés.

Les informations sur les risques auxquels ce bien est exposé sont disponibles sur le site Géorisques : www.georisques.gouv.fr.

Tableau de surfaces

Niveau Type Surface Prix* Charges**
Rez de chaussée BUREAUX 427 m² NC NC
Etage BUREAUX 580 m² NC NC
Etage BUREAUX 428 m² NC NC

*Prix exprimé en €/m²
**Charges exprimées en € HT/m²/an

Conditions financières et juridiques

12 026 € / m²

Plus faible valeur du marché

5 000 € / m²

Plus forte valeur du marché

12 261 € / m²
  • Prix net vendeur

    17 256 000 €

  • Charges annuelles

    En cours de validation

  • Impôt foncier

    En cours de validation

  • Taxe sur les bureaux

    20,79 €

  • Consommation énergétique

    En cours

  • Gaz à effet de serre

    En cours

  • Surfaces et affectations en cours de validation
  • Cession de l'actif libre de location ou d'occupation.
  • Vente de gré à gré.
  • Cession soumise aux droits d'enregistrement.
  • Le prix de vente s'exprime NET VENDEUR. L'assiette utilisée pour le calcul les droits de mutation n'inclut pas les honoraires hors TVA à la charge de l'acquéreur.

PARTAGER

Valérie AKNIN

Valérie AKNIN

Nous appeler
Selectionner cette offre Imprimer cette offre Partager cette offre par email
Réf. 6095