Transport en commun La Muette

Des bureaux à vendre à PARIS 16 (75016), métro La Muette, 650 m² de bureaux dans un immeuble ancien.

La Muette

650 m² non-divisibles

12 000 000 €
18 462 €/m²


Immeuble, prestations et services

Espaces ouverts ERP/PMR Gardien Standing

En R+3, 650 m² de bureaux répartis en espaces ouverts et cloisonnés.

Belle hauteur sous plafond.

Parquet, moulures et cheminées.

Escalier refait à neuf.

Câblage informatique.

Etat des biens : très bon état.

Les biens s'inscrivent dans un immeuble ancien, principalement constitué d'un bâtiment sur rue et cour.

A destination exclusive de bureaux, l'immeuble est détenu en pleine propriété.

Ses façades pierres de taille sont en bon état de ravalement, ses parties communes de bon standing.

Ses prestations générales regroupent ascenseurs, interphone, digicode, gardien et accès sécurisés.

Les informations sur les risques auxquels ce bien est exposé sont disponibles sur le site Géorisques : www.georisques.gouv.fr.

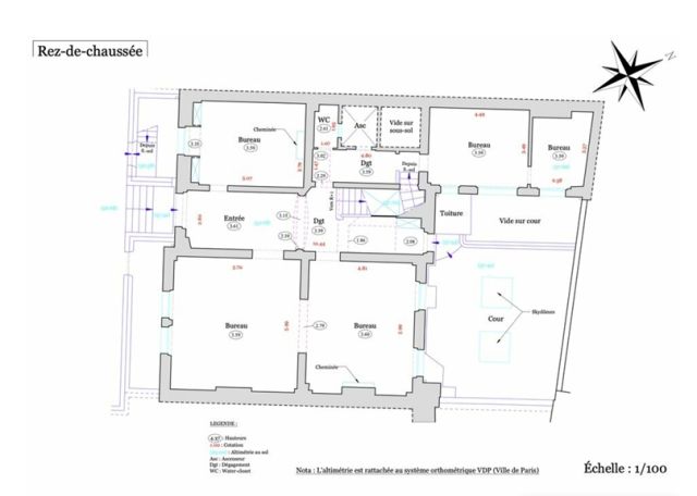
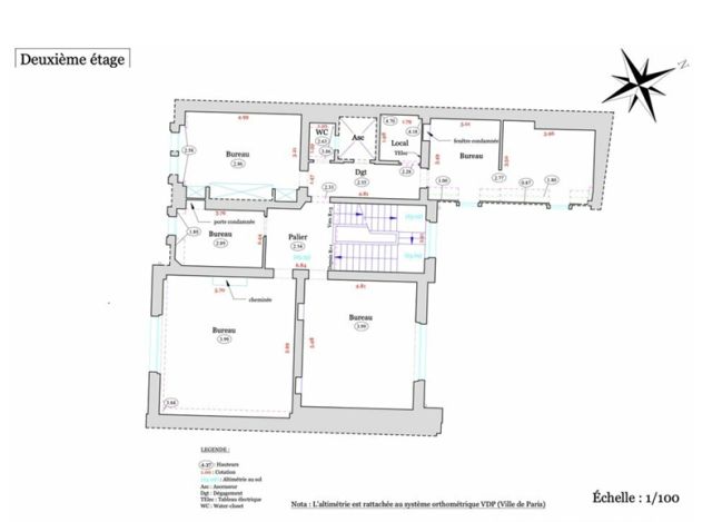
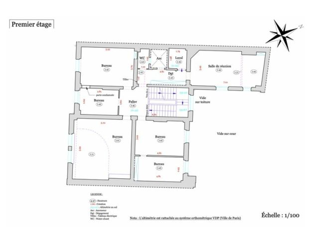
Tableau de surfaces

Niveau Type Surface Prix* Charges**
Etage BUREAUX 135 m² NC NC
Etage BUREAUX 133 m² NC NC
Etage BUREAUX 63 m² NC NC
Rez de chaussée BUREAUX 140 m² NC NC
Sous-sol BUREAUX 179 m² NC NC

*Prix exprimé en €/m²
**Charges exprimées en € HT/m²/an

Conditions financières et juridiques

18 462 € / m²

Plus faible valeur du marché

8 000 € / m²

Plus forte valeur du marché

32 521 € / m²
  • Prix net vendeur

    12 000 000 €

  • Charges annuelles

    3 250 €

  • Impôt foncier

    26 €

  • Taxe sur les bureaux

    En cours de validation

  • Consommation énergétique

    En cours

  • Gaz à effet de serre

    En cours

  • Surfaces et affectations en cours de validation
  • Cession de l'actif libre de location ou d'occupation.
  • Vente de gré à gré.
  • Cession soumise aux droits d'enregistrement.
  • Le prix de vente s'exprime NET VENDEUR. L'assiette utilisée pour le calcul les droits de mutation n'inclut pas les honoraires hors TVA à la charge de l'acquéreur.

PARTAGER

Valérie AKNIN

Valérie AKNIN

Nous appeler
Selectionner cette offre Imprimer cette offre Partager cette offre par email
Réf. 6477

Les offres similaires