Des bureaux à vendre à PARIS 16 (75016), métro Passy, 115 m² de bureaux dans un immeuble ancien.

Passy

116 m² non-divisibles

1 350 000 €
11 638 €/m²


Immeuble, prestations et services

Espaces ouverts Chauffage collectif Espace extérieur ERP/PMR Immeuble Haussmannien Rénovés Gardien Standing

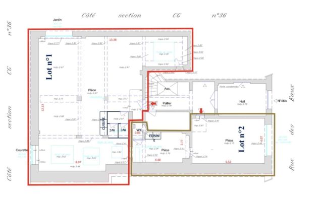
Au rez-de-chaussée, 115 m² de bureaux répartis en espaces ouverts et cloisonnés.

Belle hauteur sous plafond.

Parquet, faux-plafonds, doubles vitrages.

Câblage informatique.

Climatisation reversible.

Petite terrasse accessible depuis la surface.

Etat des biens : rénovés.

Les biens s'inscrivent dans un immeuble haussmannien, principalement constitué d'un bâtiment sur rue et cour.

A destination mixte, de bureaux et résidentiel, l'immeuble est détenu en copropriété.

Ses façades pierres de taille sont en bon état de ravalement, ses parties communes de bon standing.

Les prestations de chauffage sont produites par l'immeuble.

Ses prestations générales regroupent ascenseurs, interphone, digicode, gardien et accès sécurisés.

Les informations sur les risques auxquels ce bien est exposé sont disponibles sur le site Géorisques : www.georisques.gouv.fr.

Tableau de surfaces

Niveau Type Surface Prix* Charges**
Rez de chaussée BUREAUX 116 m² NC NC

*Prix exprimé en €/m²
**Charges exprimées en € HT/m²/an

Conditions financières et juridiques

11 638 € / m²

Plus faible valeur du marché

8 000 € / m²

Plus forte valeur du marché

32 521 € / m²
  • Prix net vendeur

    1 350 000 €

  • Charges annuelles

    3 364 €

  • Impôt foncier

    En cours de validation

  • Taxe sur les bureaux

    En cours de validation

  • Consommation énergétique

    En cours

  • Gaz à effet de serre

    En cours

  • Surfaces et affectations en cours de validation
  • Cession de l'actif libre de location ou d'occupation.
  • Vente de gré à gré.
  • Cession soumise aux droits d'enregistrement.
  • Le prix de vente s'exprime NET VENDEUR. L'assiette utilisée pour le calcul les droits de mutation n'inclut pas les honoraires hors TVA à la charge de l'acquéreur.

PARTAGER

Valérie AKNIN

Valérie AKNIN

Nous appeler
Selectionner cette offre Imprimer cette offre Partager cette offre par email
Réf. 6472

Les offres similaires