Transport en commun Alma Marceau

Des bureaux à vendre à PARIS 16 (75016), métro Alma Marceau, 255 m² de bureaux dans un immeuble ancien.

Alma Marceau

255 m² non-divisibles

6 500 000 €
25 491 €/m²


Immeuble, prestations et services

Salle de réunion Parking Chauffage collectif Cuisine Espace extérieur ERP/PMR Immeuble Haussmannien Gardien Standing

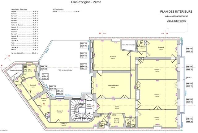
Au 2ème étage, 255 m² de bureaux répartis en 2 open-spaces de 8 personnes, 6 bureaux individuels, 1 salle de réunion, 1 local technique, 1 cuisine.

Belle hauteur sous-plafond (3,70 m).

Parquet et moulures dans chaque bureau.

Plafond à caisson.

Salle de réunion avec bow-window.

Plinthes périphériques.

Climatisation.

Balcon filant.

Cuisine équipée • 3 wc • Cave.

Etat des biens : en cours de rénovation.

Les biens s'inscrivent dans un immeuble haussmannien principalement constitué d'un bâtiment sur rue et cour.

A destination mixte, de bureaux et résidentiel, l'immeuble est détenu en copropriété.

Ses façades pierres de taille sont en bon état de ravalement, ses parties communes de bon standing.

Les prestations de chauffage sont produites par l'immeuble.

Ses prestations générales regroupent ascenseurs, interphone, digicode, gardien et accès sécurisés.

Les informations sur les risques auxquels ce bien est exposé sont disponibles sur le site Géorisques : www.georisques.gouv.fr.

Tableau de surfaces

Niveau Type Surface Prix* Charges**
Etage BUREAUX 255 m² NC NC

*Prix exprimé en €/m²
**Charges exprimées en € HT/m²/an

Parking Nombre Prix /unité
Intérieur 2 0 €

Conditions financières et juridiques

25 491 € / m²

Plus faible valeur du marché

8 000 € / m²

Plus forte valeur du marché

32 521 € / m²
  • Prix net vendeur

    6 500 000 €

  • Charges annuelles

    17 340 €

  • Impôt foncier

    En cours de validation

  • Taxe sur les bureaux

    En cours de validation

  • Consommation énergétique

    En cours

  • Gaz à effet de serre

    En cours

  • Surfaces et affectations en cours de validation
  • Cession de l'actif libre de location ou d'occupation.
  • Vente de gré à gré.
  • Cession soumise aux droits d'enregistrement.
  • Le prix de vente s'exprime NET VENDEUR. L'assiette utilisée pour le calcul les droits de mutation n'inclut pas les honoraires hors TVA à la charge de l'acquéreur.

PARTAGER

Valérie AKNIN

Valérie AKNIN

Nous appeler
Selectionner cette offre Imprimer cette offre Partager cette offre par email
Réf. 6451

Les offres similaires