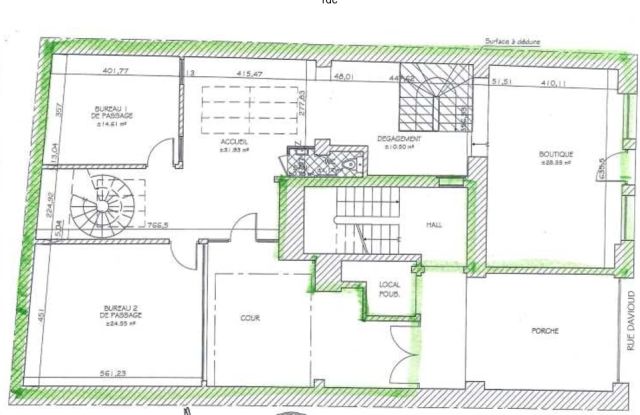
Des bureaux à vendre à PARIS 16 (75016), métro Ranelagh, 155 m² de bureaux dans une petite maison d'architecte sur 3 niveaux.

Ranelagh

155 m² non-divisibles

2 200 000 €
14 194 €/m²


Immeuble, prestations et services

Espaces ouverts ERP/PMR Standing

Sur 3 niveaux, 174 m² de bureaux répartis en 1 accueil, 4 bureaux cloisonnés, 2 espaces ouverts et 1 kitchenette équipée.

Luminosité et grande hauteur sous plafond.

Linéaire de vitrine sur la rue Davioud avec possibilité de recréer l'accès par la rue

Surface Carrez : 155,31m², surface au sol : 210,33m² incluant la cour privative de 20,31 m²

Etat des biens : excellent.

Les biens s'inscrivent dans un immeuble ancien édifié sur la parcelle CL 0014.

A destination mixte, bureaux et résidentiel, l'immeuble est détenu en copropriété.

Ses façades en pierres meulières sont en bon état de ravalement, et ses parties communes de bon standing.

Ses prestations générales regroupent ascenseurs, interphone, digicode et accès sécurisés.

Les informations sur les risques auxquels ce bien est exposé sont disponibles sur le site Géorisques : www.georisques.gouv.fr.

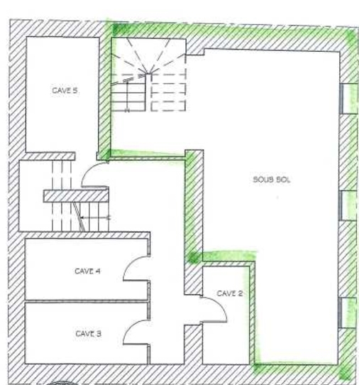
Tableau de surfaces

Niveau Type Surface Prix* Charges**
Etage BUREAUX 41 m² NC NC
Sous-sol LOC. POLYVALENTS 40 m² NC NC
Rez de chaussée BUREAUX 114 m² NC NC

*Prix exprimé en €/m²
**Charges exprimées en € HT/m²/an

Conditions financières et juridiques

14 194 € / m²

Plus faible valeur du marché

8 000 € / m²

Plus forte valeur du marché

32 521 € / m²
  • Prix net vendeur

    2 200 000 €

  • Charges annuelles

    En cours de validation

  • Impôt foncier

    En cours de validation

  • Taxe sur les bureaux

    En cours de validation

  • Consommation énergétique

    En cours

  • Gaz à effet de serre

    En cours

  • Surfaces et affectations en cours de validation
  • Cession de l'actif libre de location ou d'occupation.
  • Vente de gré à gré.
  • Cession soumise aux droits d'enregistrement.
  • Le prix de vente s'exprime NET VENDEUR. L'assiette utilisée pour le calcul les droits de mutation n'inclut pas les honoraires hors TVA à la charge de l'acquéreur.

PARTAGER

Valérie AKNIN

Valérie AKNIN

Nous appeler
Selectionner cette offre Imprimer cette offre Partager cette offre par email
Réf. 6368

Les offres similaires