Des bureaux à vendre à PARIS 16 (75016), métro Passy, 327 m² de bureaux dans un immeuble classé édifié par Auguste Perret.

Passy

327 m² non-divisibles

3 750 000 €
11 468 €/m²


Immeuble, prestations et services

Salle de réunion Cuisine ERP/PMR Rénovés Gardien Standing

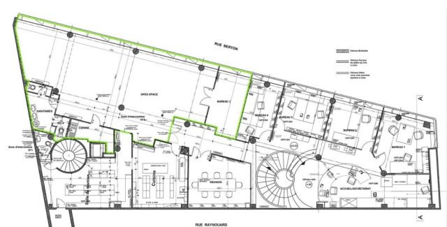
Au rez-de-chaussée bas, 327 m² de bureaux répartis en un accueil, 5 bureaux fermés, espace ouvert éclairé par de grandes baies vitrées, salle de réunion, cuisine.

Ces bureaux climatisés et rénovés offrent un espace de travail moderne et confortable

Très belle hauteur sous plafond.

Moquette, faux-plafonds, doubles vitrages.

Parquet dans certains bureaux.

Câblage informatique. Climatisation.

Etat des biens : rénovés.

Les biens s'inscrivent dans un immeuble classé édifié par l'architecte Auguste Perret qui fut l'un des premiers techniciens spécialistes du béton armé.

A destination exclusive de bureaux, l'immeuble est détenu en copropriété.

Ses façades sont en bon état de ravalement, ses parties communes de bon standing.

Ses prestations générales regroupent ascenseurs, interphone, digicode, gardien et accès sécurisés.

Les informations sur les risques auxquels ce bien est exposé sont disponibles sur le site Géorisques : www.georisques.gouv.fr.

Tableau de surfaces

Niveau Type Surface Prix* Charges**
RDC Bas BUREAUX 327 m² NC NC

*Prix exprimé en €/m²
**Charges exprimées en € HT/m²/an

Conditions financières et juridiques

11 468 € / m²

Plus faible valeur du marché

8 000 € / m²

Plus forte valeur du marché

32 521 € / m²
  • Prix net vendeur

    3 750 000 €

  • Charges annuelles

    En cours de validation

  • Impôt foncier

    En cours de validation

  • Taxe sur les bureaux

    25,31 €

  • Consommation énergétique

    En cours

  • Gaz à effet de serre

    En cours

  • Surfaces et affectations en cours de validation
  • Cession de l'actif libre de location ou d'occupation.
  • Vente de gré à gré.
  • Cession soumise aux droits d'enregistrement.
  • Le prix de vente s'exprime NET VENDEUR. L'assiette utilisée pour le calcul les droits de mutation n'inclut pas les honoraires hors TVA à la charge de l'acquéreur.

PARTAGER

Valérie AKNIN

Valérie AKNIN

Nous appeler
Selectionner cette offre Imprimer cette offre Partager cette offre par email
Réf. 6315

Les offres similaires