Des bureaux à vendre à PARIS 16 (75016), métro Exelmans, 477 m² de bureaux dans un très bel hôtel particulier restructuré.

Exelmans

477 m² non-divisibles

5 900 000 €
12 369 €/m²


Immeuble, prestations et services

Espaces ouverts Espace extérieur ERP/PMR Gardien Standing

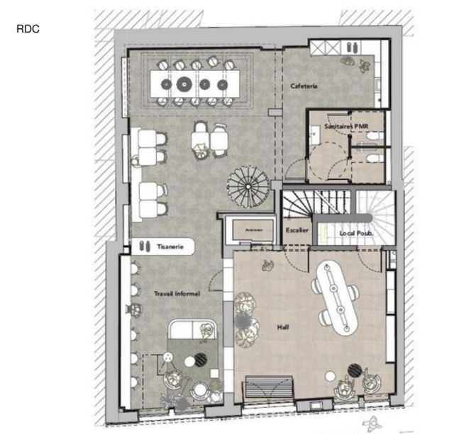
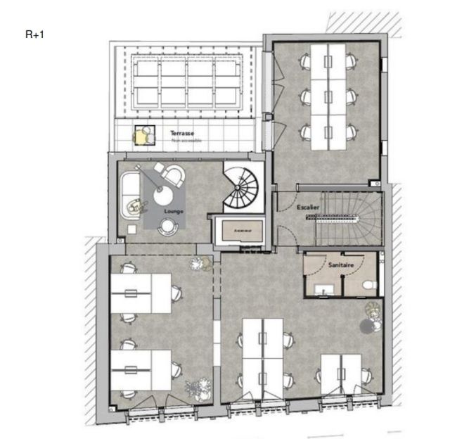
En R+3, 477 m² de bureaux répartis en un espace accueil, espaces ouverts et bureaux cloisonnés.

Moquette, faux-plafonds, doubles vitrages.

Câblage informatique.

Climatisation double flux.

5 sanitaires privatifs dont 2 sanitaires PMR.

Terrasse de 51 m² au 3ème étage.

Etat des biens : restructurés.

Possibilité de clé en main.

Les biens s'inscrivent dans un immeuble restructuré, principalement constitué d'un bâtiment sur rue et cour.

A destination exclusive de bureaux, l'immeuble est détenu en pleine propriété.

Ses façades pierres de taille sont en bon état de ravalement, ses parties communes de bon standing.

Ses prestations générales regroupent ascenseurs, interphone, digicode, gardien et accès sécurisés.

Les informations sur les risques auxquels ce bien est exposé sont disponibles sur le site Géorisques : www.georisques.gouv.fr.

Tableau de surfaces

Niveau Type Surface Prix* Charges**
Immeuble BUREAUX 477 m² NC NC

*Prix exprimé en €/m²
**Charges exprimées en € HT/m²/an

Conditions financières et juridiques

12 369 € / m²

Plus faible valeur du marché

8 000 € / m²

Plus forte valeur du marché

32 521 € / m²
  • Prix net vendeur

    5 900 000 €

  • Charges annuelles

    21 507 €

  • Impôt foncier

    9,21 €

  • Taxe sur les bureaux

    25,31 €

  • Consommation énergétique

    En cours

  • Gaz à effet de serre

    En cours

  • Surfaces et affectations en cours de validation
  • Cession de l'actif libre de location ou d'occupation.
  • Vente de gré à gré.
  • Cession soumise aux droits d'enregistrement.
  • Le prix de vente s'exprime NET VENDEUR. L'assiette utilisée pour le calcul les droits de mutation n'inclut pas les honoraires hors TVA à la charge de l'acquéreur.

PARTAGER

Valérie AKNIN

Valérie AKNIN

Nous appeler
Selectionner cette offre Imprimer cette offre Partager cette offre par email
Réf. 6314

Les offres similaires