Transport en commun «Victor Hugo»

Des bureaux à vendre à PARIS 16 (75016), métro Victor Hugo, 330 m² de bureaux dans un immeuble ancien.

«Victor Hugo»

330 m² non-divisibles

5 000 000 €
15 152 €/m²


Immeuble, prestations et services

Climatisation Espaces ouverts ERP/PMR Immeuble Haussmannien Gardien Standing

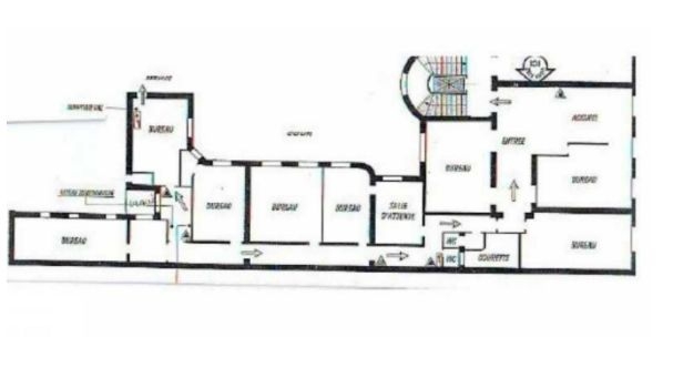
Au 1er étage, 330 m² de bureaux répartis en 7 bureaux sur cour et 3 grands bureaux côté avenue Victor Hugo.

Possibilité de décloisonner pour créer des espaces ouverts.

Plateau en double exposition.

Très belle hauteur sous plafond.

Espace accueil marbré.

Grands volumes.

Carrelage, faux-plafonds, doubles vitrages.

Câblage informatique, fibre optique.

Etat des biens : très bon état.

Les biens s'inscrivent dans un immeuble haussmannien principalement constitué d'un bâtiment sur rue et cour.

A destination mixte, de bureaux et résidentiel, l'immeuble est détenu en copropriété.

Ses façades pierres de taille ont été récemment ravalées, ses parties communes de bon standing.

Ses prestations générales regroupent ascenseurs, interphone, digicode, gardien et accès sécurisés.

Les informations sur les risques auxquels ce bien est exposé sont disponibles sur le site Géorisques : www.georisques.gouv.fr.

Tableau de surfaces

Niveau Type Surface Prix* Charges**
Etage BUREAUX 330 m² NC NC

*Prix exprimé en €/m²
**Charges exprimées en € HT/m²/an

Conditions financières et juridiques

15 152 € / m²

Plus faible valeur du marché

8 000 € / m²

Plus forte valeur du marché

32 521 € / m²
  • Prix net vendeur

    5 000 000 €

  • Charges annuelles

    En cours de validation

  • Impôt foncier

    En cours de validation

  • Taxe sur les bureaux

    25,31 €

  • Consommation énergétique

    En cours

  • Gaz à effet de serre

    En cours

  • Surfaces et affectations en cours de validation
  • Cession de l'actif libre de location ou d'occupation.
  • Vente de gré à gré.
  • Cession soumise aux droits d'enregistrement.
  • Le prix de vente s'exprime NET VENDEUR. L'assiette utilisée pour le calcul les droits de mutation n'inclut pas les honoraires hors TVA à la charge de l'acquéreur.

PARTAGER

Valérie AKNIN

Valérie AKNIN

Nous appeler
Selectionner cette offre Imprimer cette offre Partager cette offre par email
Réf. 6295

Les offres similaires