Transport en commun Victor Hugo

Des bureaux à vendre à PARIS 16 (75016), métro Victor Hugo, 240 m² de bureaux dans un immeuble ancien.

Victor Hugo

240 m² non-divisibles

3 250 000 €
13 542 €/m²


Immeuble, prestations et services

ERP/PMR Immeuble Haussmannien Rénovés Gardien Standing

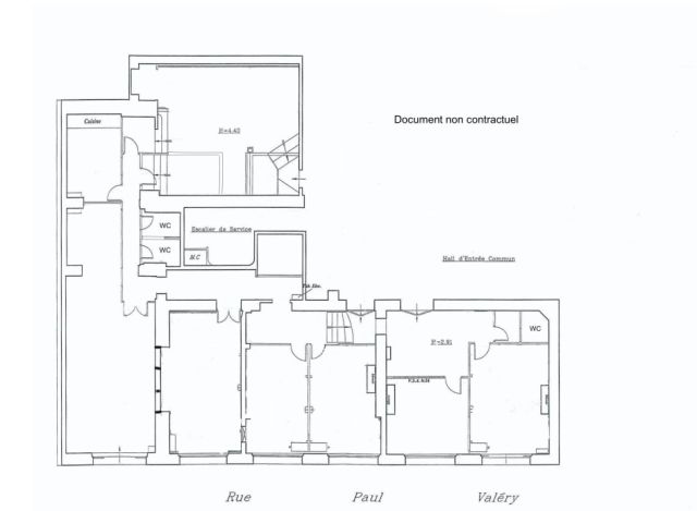
Au rez-de-chaussée, 240 m² de bureaux répartis en 5 bureaux, 1 espace ouvert et 3 sanitaires.

Beaux volumes, belle hauteur sous plafond.

1 entrée côté rue 2 entrées dans le hall.

Parquet, moulures, cheminées.

Câblage informatique.

Climatisation réversible neuve.

Etat des biens : récemment rénovés.

Les biens s'inscrivent dans un immeuble haussmannien principalement constitué d'un bâtiment sur rue et cour.

A destination mixte, de bureaux et résidentiel, l'immeuble est détenu en copropriété.

Ses façades pierres de taille sont en bon état de ravalement, ses parties communes de bon standing.

Ses prestations générales regroupent ascenseurs, interphone, digicode, gardien et accès sécurisés.

Les informations sur les risques auxquels ce bien est exposé sont disponibles sur le site Géorisques : www.georisques.gouv.fr.

Tableau de surfaces

Niveau Type Surface Prix* Charges**
Rez de chaussée BUREAUX 240 m² NC NC

*Prix exprimé en €/m²
**Charges exprimées en € HT/m²/an

Conditions financières et juridiques

13 542 € / m²

Plus faible valeur du marché

8 000 € / m²

Plus forte valeur du marché

32 521 € / m²
  • Prix net vendeur

    3 250 000 €

  • Charges annuelles

    En cours de validation

  • Impôt foncier

    En cours de validation

  • Taxe sur les bureaux

    En cours de validation

  • Consommation énergétique

    En cours

  • Gaz à effet de serre

    En cours

  • Surfaces et affectations en cours de validation
  • Cession de l'actif libre de location ou d'occupation.
  • Vente de gré à gré.
  • Cession soumise aux droits d'enregistrement.
  • Le prix de vente s'exprime NET VENDEUR. L'assiette utilisée pour le calcul les droits de mutation n'inclut pas les honoraires hors TVA à la charge de l'acquéreur.

PARTAGER

Valérie AKNIN

Valérie AKNIN

Nous appeler
Selectionner cette offre Imprimer cette offre Partager cette offre par email
Réf. 6276

Les offres similaires