Des bureaux à vendre à PARIS 16 (75016), métro Argentine, 265 m² de bureaux dans un immeuble ancien.

Argentine

265 m² non-divisibles

2 120 000 €
8 000 €/m²


Immeuble, prestations et services

Salle de réunion Cuisine ERP/PMR Immeuble Haussmannien Rénovés Gardien Standing

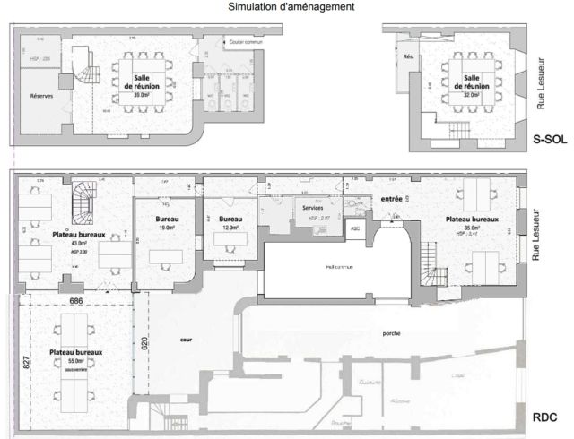
Au rez-de-chaussée et sous-sol, 265 m² de bureaux et habitation.

Partie rue (usage habitation) : RDC aménagé en 1 entrée, 1 grand bureau/salon, 2 chambres, 1 cuisine, une salle de douche et une sanitaire indépendant, et au sous-sol,

1 chambre avec une salle de douche.

Partie cour (usage bureaux, affectation, en cours de validation) : RDC aménagé en 2 bureaux sur cour et au sous-sol 1 open–space, une réserve, une cuisine, sanitaires et douche.

Associés à la vente Partie 1 & 2 : 2 emplacements de

parking protégés dans la cour (ancienne remise transformée

en parking et espace de stockage)

Prix de vente de la Partie 1 & 2 et parking : 2.120.000 € net

vendeur + 5% HT d'honoraires

Usage et affectation en cours de validation.

Câblage existant.

Belle hauteur sous plafond sur l'ensemble des volumes.

Chauffage électrique.

Surface PMR et ERPéable.

Locaux , précédemment exploités en totalité en bureaux et temporairement divisés en

2 lots.

Possibilité d'aménagement : (RDC) avec 1 accueil, 6 bureaux, 1 cuisine, salle de douche et sanitaire et (au sous-sol) 1 salle de réunion, 1 grand open-space, 2 sanitaires et 1 douche.

Etat des biens : en très bon état, récemment rénovés.

Les biens s'inscrivent dans un immeuble haussmannien, principalement constitué d'un bâtiment sur rue et cour.

A destination mixte, de bureaux et résidentiel, l'immeuble est détenu en copropriété.

Ses façades pierres de taille sont en bon état de ravalement, ses parties communes de bon standing.

Ses prestations générales regroupent ascenseurs, interphone, digicode, gardien et accès sécurisés.

Les informations sur les risques auxquels ce bien est exposé sont disponibles sur le site Géorisques : www.georisques.gouv.fr.

Tableau de surfaces

Niveau Type Surface Prix* Charges**
Rez de chaussée HABITATION 105 m² NC NC
Sous-sol HABITATION 41 m² NC NC
Rez de chaussée BUREAUX 45 m² NC NC
Sous-sol BUREAUX 74 m² NC NC

*Prix exprimé en €/m²
**Charges exprimées en € HT/m²/an

Conditions financières et juridiques

8 000 € / m²

Plus faible valeur du marché

8 000 € / m²

Plus forte valeur du marché

32 521 € / m²
  • Prix net vendeur

    2 120 000 €

  • Charges annuelles

    En cours de validation

  • Impôt foncier

    En cours de validation

  • Taxe sur les bureaux

    En cours de validation

  • Consommation énergétique

    En cours

  • Gaz à effet de serre

    En cours

  • Surfaces et affectations en cours de validation
  • Cession de l'actif libre de location ou d'occupation.
  • Vente de gré à gré.
  • Cession soumise aux droits d'enregistrement.
  • Le prix de vente s'exprime NET VENDEUR. L'assiette utilisée pour le calcul les droits de mutation n'inclut pas les honoraires hors TVA à la charge de l'acquéreur.

PARTAGER

Valérie AKNIN

Valérie AKNIN

Nous appeler
Selectionner cette offre Imprimer cette offre Partager cette offre par email
Réf. 6184

Les offres similaires