Transport en commun Michel Ange Auteuil

Des bureaux à vendre à PARIS 16 (75016), métro Michel Ange Auteuil, 1562 m² de bureaux dans un immeuble moderne.

Michel Ange Auteuil

1562 m² non-divisibles

12 500 000 €
8 003 €/m²


Immeuble, prestations et services

Espaces ouverts Parking Espace extérieur ERP/PMR Gardien Standing

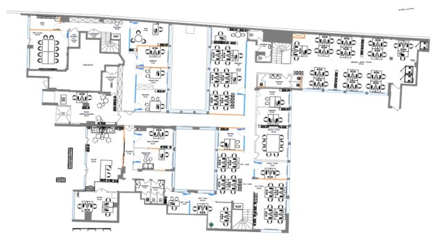
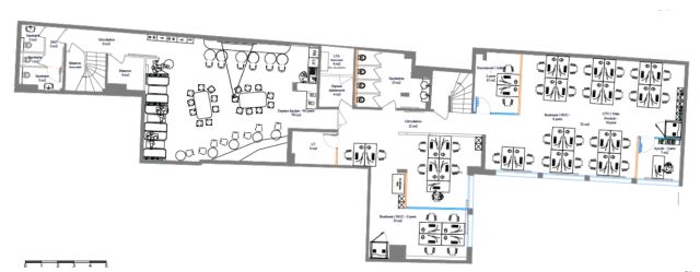
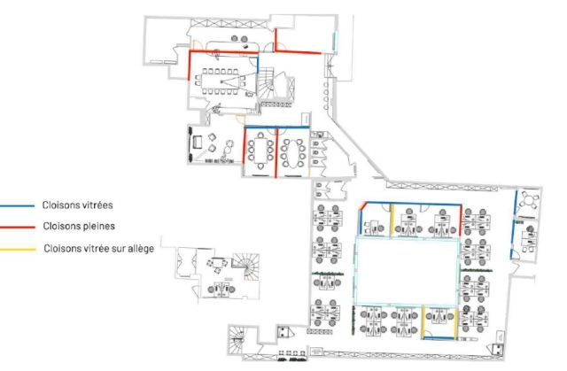
Au rez-de-chaussée et rez-de-jardin, 1562,60 m² de bureaux répartis en espaces ouverts et cloisonnés.

Surface rationnelle et efficace.

Moquette, faux-plafonds, doubles vitrages. Câblage informatique.

Classement ERP 3 envisageable.

4 accès privatifs sur rue, 2 adresses.

3 patios paysagés non accessibles - jardins d’agrément.

Etat des biens : bon état général

Ensemble réparti sur deux niveaux donnant sur rue, patios et sur une cour arborée au calme,

A destination exclusive de bureaux et résidentiel, l'immeuble est détenu en pleine propriété.

Ses façades modernes sont en bon état de ravalement, et ses parties communes de bon standing.

Ses prestations générales regroupent ascenseurs, interphone, digicode, gardien et accès sécurisés.

Les informations sur les risques auxquels ce bien est exposé sont disponibles sur le site Géorisques : www.georisques.gouv.fr.

Tableau de surfaces

Niveau Type Surface Prix* Charges**
Rez de chaussée BUREAUX 714 m² NC NC
Rez de chaussée PARTIES COMMUNES 27 m² NC NC
Rez de jardin BUREAUX 289 m² NC NC
Rez de jardin BUREAUX 532 m² NC NC

*Prix exprimé en €/m²
**Charges exprimées en € HT/m²/an

Parking Nombre Prix /unité
Intérieur 15 26666,66 €

Conditions financières et juridiques

8 003 € / m²

Plus faible valeur du marché

8 000 € / m²

Plus forte valeur du marché

32 521 € / m²
  • Prix net vendeur

    12 500 000 €

  • Charges annuelles

    74 724 €

  • Impôt foncier

    14,72 €

  • Taxe sur les bureaux

    21,93 €

  • Consommation énergétique

    En cours

  • Gaz à effet de serre

    En cours

  • Surfaces et affectations en cours de validation
  • Cession de l'actif libre de location ou d'occupation.
  • Vente de gré à gré.
  • Cession soumise aux droits d'enregistrement.
  • Le prix de vente s'exprime NET VENDEUR. L'assiette utilisée pour le calcul les droits de mutation n'inclut pas les honoraires hors TVA à la charge de l'acquéreur.

PARTAGER

Valérie AKNIN

Valérie AKNIN

Nous appeler
Selectionner cette offre Imprimer cette offre Partager cette offre par email
Réf. 6084

Les offres similaires